エバーライフ博多南弐番館|博多南駅から徒歩16分|那珂川市(福岡県)の中古マンション

外観

外観

3,380万円

月々の支払い目安:--

ローン詳細

\ 人気物件は決まるのが早い!まずはお問合せを /

メールアイコン 物件の資料をもらう 3項目のみ入力すればOK 無料

掲載終了まであと7

所在地・交通

福岡県那珂川市松原7-17

博多南線 博多南駅/徒歩16分

地図を見る

POINT

リノベーション部屋!!設備充実!!

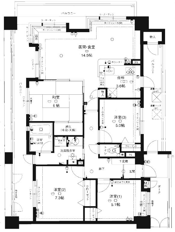
間取り
4LDK
専有面積
96.19 ㎡
築年月
2006 年7 月(築20 年)
土地権利
所有権
駐車場
空有 1,500円(税込) 1500~11000円
現況
空家
実際に見学したい

株式会社ディーアールシティ ドッとあ~る大橋店

地域の皆さまとのつながりを大切に、長年不動産取引を行ってきた会社です。確かな実績に裏打ちされた情報力や交渉術、コミュニケーション力を活かして、お客様のご希望やご事情を第一に考えたご提案をしています。

会社情報

この物件について

こちらの物件はJR博多南線を博多南駅で下車し、徒歩16分の場所に位置しています。ペット飼育を相談(飼育できるペットの種類は必ず事前にご相談ください)でき、防犯効果も高い人気のオートロック付き物件となっております。また、洗濯物を干したりちょっとした家庭菜園やガーデニングを楽しめるバルコニー付きのお部屋となっております。周辺290m圏内(徒歩4分)にはスーパーもあります。

※「この物件について」に記載の情報は、登録情報をもとに当サイトが掲載するものであり、不動産物件情報を掲載している不動産事業者が掲載するものではありません。

内観・外観

間取り図

間取り 拡大

4LDK

専有面積
96.19 ㎡
バルコニー
31.84 ㎡
建物構造
RC
所在階 / 階数
1 階 / 14 階建

写真

パノラマ

リフォーム・リノベーション

水回り

2026年02月実施

  • キッチン
  • 浴室
  • トイレ
  • 洗面所
  • 給湯器
内装

2026年02月実施

  • 内装全面(床、壁、天井、建具すべて)
  • 壁、天井(クロス、塗装等)
  • 全室クロス張替
  • 床(フローリング等)
  • 建具(室内ドア等)

\ 人気物件は決まるのが早い!まずはお問合せを /

メールアイコン 物件の資料をもらう 3項目のみ入力すればOK 無料

掲載終了まであと7

電話アイコン 電話で問い合わせ 無料

この物件を共有・保存する

設備

設備画像

主な設備

キッチン
  • システムキッチン

    システム
    キッチン

  • カウンターキッチン

    カウンター
    キッチン

  • IHコンロ

    IHコンロ

  • ガスコンロ

    ガスコンロ

バス・トイレ
  • 追い焚き

    追い焚き

  • 浴室乾燥機

    浴室乾燥機

  • シャワー付洗面化粧台

    シャワー付
    洗面化粧台

  • 洗浄便座

    洗浄便座

室内設備
  • ウォークインクローゼット

    ウォークイン
    クローゼット

  • オートロック

    オート
    ロック

  • TVモニタ付ドアホン

    TVモニタ付
    ドアホン

  • 宅配ボックス

    宅配
    ボックス

特徴
  • ペット相談可

    ペット
    相談可

  • エレベーター

    エレベーター

  • 南向き

    南向き

  • 駐車場付

    駐車場付

その他設備

公営水道、下水、専用バス、専用トイレ、バス・トイレ別、シャワー、ガスコンロ、三口コンロ、システムキッチン、給湯、追焚機能、シャワー付洗面化粧台、室内洗濯機置場、オートロック、エレベーター、バルコニー、フローリング、宅配ボックス、タイル貼り、角部屋、TVドアホン、温水洗浄便座、カウンターキッチン、浴室乾燥機、洗面所独立、食器洗い乾燥機、防犯カメラ、全居室収納、クローゼット、下駄箱

設備情報について質問する

\ 人気物件は決まるのが早い!まずはお問合せを /

メールアイコン 物件の資料をもらう 3項目のみ入力すればOK 無料

掲載終了まであと7

電話アイコン 電話で問い合わせ 無料

この物件を共有・保存する

周辺情報

周辺の歯医者

読込中

周辺の医療機関

読込中

周辺の駅

読込中

周辺の銀行

読込中

周辺のパン屋

読込中

その他の周辺施設を探す
学区や周辺について質問したい

ハザード情報

物件周辺の土砂、浸水、津波、
地震の情報を地図で確認できます。

ハザードマップを確認する

※周辺情報は「 出典一覧(施設情報) 」のデータを元に当サイトが独自の方法で抽出し掲載しているものです。不動産物件情報を提供している不動産事業者が掲載するものでありません。
※周辺情報は移転や閉鎖等により情報が最新ではない、正しくない場合があります。詳しくは不動産会社にお問い合わせのうえ、ご確認をお願い致します。

\ 人気物件は決まるのが早い!まずはお問合せを /

メールアイコン 物件の資料をもらう 3項目のみ入力すればOK 無料

掲載終了まであと7

電話アイコン 電話で問い合わせ 無料

この物件を共有・保存する

物件概要

価格
3,380 万円

--

ローン詳細
管理費等
7,700 円
修繕積立金
11,500 円
修繕積立基金
--
間取り
4LDK
専有面積
96.19 ㎡
バルコニー
31.84 ㎡
駐車場
空有 1,500円(税込) 1500~11000円
築年月
2006 年 7 月(築 20 年)
住所
福岡県那珂川市松原7-17 地図を見る
交通

博多南線 博多南駅/徒歩16分

--

--

総戸数
--
主要採光面
建物構造
RC 造
用途地域
--
土地権利
所有権
国土法届出
--
借地料
--
借地期間
--
管理
管理員:日勤、管理形態:全部委託
引渡し
即時
取引態様
仲介
その他費用
--
その他条件
南向き、ペット対応
備考
--
周辺施設
【小学校】安徳南小学校 1,550m
【中学校】那珂川南中学校 1,820m
【コンビニ】コンビニ 480m
【スーパー】スーパー 290m
【公園】公園 1,400m
【ドラッグストア】ドラッグストア 520m
【銀行】銀行 1,020m
物件番号
340000278114
自社管理番号
1080080000442
登録日
2026/03/07
有効期限
2026/04/02

※情報提供元:LIFULL HOME'S

会社情報

取り扱い不動産会社

株式会社ディーアールシティ ドッとあ~る大橋店
住所
福岡県福岡市南区大橋1丁目15番5号 竹内ビル1階 
営業時間など
営業時間/10:00~18:00
祝祭日休み
定休日/毎週水曜日
免許番号
福岡県知事(3)第17165号
所属団体
(一社)九州不動産公正取引協議会、(公社)福岡県宅地建物取引業協会
保証協会
(公社)全国宅地建物取引業保証協会

※光IP 電話、及びIP 電話からはご利用になれません
※情報元の「LIFULL HOME'S」掲載店舗に連絡されます
※不動産会社がお電話に出られなかった場合、株式会社LIFULLは電話会社が提供するサービスを介してお客様の発信者番号を受領後、折り返し専用の電話番号を発番してお問合せの不動産会社に通知します(お客様の発信者番号がお問合せの不動産会社に通知されることはございません)

物件に関するお問い合わせ

必須
必須
必須

※携帯電話でドメイン指定受信を利用している場合は、「chintaistyle.jp」「d-chintai.jp」を解除してください。

あなたにぴったりの物件情報などをお届けします。

確認ページへ進む

最近見た物件と比較

閲覧中
外観:340000278114

エバーライフ博多南弐番館

3,380万円

4LDK

96.19㎡

築20年

那珂川市松原

博多南線 博多南駅/徒歩16分

資料請求する

外観:313004538121

アトラス渋谷公園通り

16,980万円

1LDK

46.43㎡ (壁芯)

築13年

渋谷区宇田川町

山手線 渋谷駅/徒歩7分

詳細を見る

近くの類似おすすめ物件

現在00件保存されています。

残り00件追加することができます。

お気に入り物件一覧を見る

間隔を空けてお試しください。

メールアイコン 資料請求 無料 電話アイコン 電話する 無料