月々の支払い目安:--
POINT
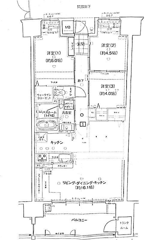
■2面バルコニー81m超えの角住戸3LDK+サービスルーム約5帖■2026年4月リフォーム完了■新耐震基準■AL西原駅徒歩約10分■バス停徒歩約2分■ゆめテラス祇園徒歩約4分
- 間取り
- 3SDK
- 専有面積
- 81.28 ㎡ (内法)
- 築年月
- 1996 年7 月(築30 年)
- 土地権利
- 所有権
- 駐車場
- 空有 10,000円(税込)
- 現況
- 空家
株式会社ケイアイ不動産販売 SUMiTAS大町店
安佐南区、安佐北区を中心に幅広いエリアに対応致します。お客様毎に経験豊富なスタッフがご相談からご成約までを一貫して対応させて頂きます。お困りの事、気になってる事など、まずはお気軽にご相談下さい。
会社情報この物件について
この物件は徒歩10分の場所に位置しています。洗濯物を干したりちょっとした家庭菜園やガーデニングを楽しめるバルコニー付きのお部屋となっており、防犯効果も高い人気のオートロック付き物件となっております。また、外の視線からプライバシーを守りやすい2階以上のお部屋となっております。周辺252m圏内(徒歩4分)には広島市立原小学校もあります。
※「この物件について」に記載の情報は、登録情報をもとに当サイトが掲載するものであり、不動産物件情報を掲載している不動産事業者が掲載するものではありません。
内観・外観
設備
設備画像
主な設備
- キッチン
-
システム
キッチン -
カウンター
キッチン -
IHコンロ
-
ガスコンロ
-
- バス・トイレ
-
追い焚き
-
浴室乾燥機
-
シャワー付
洗面化粧台 -
洗浄便座
-
- 室内設備
-
ウォークイン
クローゼット -
オート
ロック -
TVモニタ付
ドアホン -
宅配
ボックス
-
- 特徴
-
ペット
相談可 -
エレベーター
-
南向き
-
駐車場付
-
その他設備
都市ガス、システムキッチン、追焚機能、シャワー付洗面化粧台、オートロック、エレベーター、出窓、バルコニー、フローリング、角部屋、温水洗浄便座、浴室乾燥機
この物件を共有・保存する
周辺情報
- 周辺の歯医者
読込中
- 周辺の医療機関
読込中
- 周辺の駅
読込中
- 周辺の銀行
読込中
- 周辺のパン屋
読込中
- その他の周辺施設を探す
ハザード情報
物件周辺の土砂、浸水、津波、
地震の情報を地図で確認できます。
※周辺情報は「
出典一覧(施設情報)
」のデータを元に当サイトが独自の方法で抽出し掲載しているものです。不動産物件情報を提供している不動産事業者が掲載するものでありません。
※周辺情報は移転や閉鎖等により情報が最新ではない、正しくない場合があります。詳しくは不動産会社にお問い合わせのうえ、ご確認をお願い致します。
この物件を共有・保存する
物件概要
- 価格
- 3,690
万円
--
ローン詳細 - 管理費等
- 9,700 円
- 修繕積立金
- 14,200 円
- 修繕積立基金
- --
- 間取り
- 3SDK
- 専有面積
- 81.28 ㎡ (内法)
- バルコニー
- 23.09 ㎡
- 駐車場
- 空有 10,000円(税込)
- 築年月
- 1996 年 7 月(築 30 年)
- 住所
- 広島県広島市安佐南区西原6丁目18-21 地図を見る
- 交通
アストラムライン 西原駅/徒歩10分
--
--
- 総戸数
- --
- 主要採光面
- 南
- 建物構造
- SRC 造
- 用途地域
- --
- 土地権利
- 所有権
- 国土法届出
- 不要
- 借地料
- --
- 借地期間
- --
- 管理
- 管理員:巡回、管理形態:全部委託
- 現況
- 空家 実際に見学したい
- 引渡し
- 2026年05月 下旬
- 取引態様
- 仲介
- その他費用
- --
- その他条件
- 南向き
- 備考
- ◎2026年4月リフォーム完了:システムキッチン・ユニットバス・洗面化粧台・洗濯機防水パン・温水洗浄機能付トイレ・建具・玄関収納新規交換、浴室乾燥機・LEDセンサーライト・LEDダウンライト新規設置、フローリング・クロス張替、ガス給湯器・カーテンレール交換、ハウスクリーニング他
◎住宅ローン控除・フラット35適合
◎オートロック
◎駐車場:敷地内引継可(10000円/月)専用使用権有
◎駐輪場:無料(シール代300円/台)
◎バイク置場:無料(シール代500円/台)
◎原小学校徒歩約4分 - 周辺施設
- 【小学校】広島市立原小学校 252m
【中学校】広島市立祇園東中学校 774m - 物件番号
- 334000243061
- 自社管理番号
- 32282050001905
- 登録日
- 2026/04/27
- 有効期限
- 2026/05/05
※情報提供元:LIFULL HOME'S
会社情報
取り扱い不動産会社
- 住所
- 広島県広島市安佐南区大町東1丁目11-7-103
- 営業時間など
- 営業時間/ 9:15~18:45
定休日/年末年始・盆・GW - 免許番号
- 国土交通大臣(02)第9597号
- 所属団体
- 中国地区不動産公正取引協議会、(公社)広島県宅地建物取引業協会、(公社)西日本不動産流通機構
- 保証協会
- (公社)全国宅地建物取引業保証協会
物件に関するお問い合わせ
最近見た物件と比較
|
閲覧中
グランドメゾン祇園 3,690万円
|
3SDK |
81.28㎡ (内法) |
築30年 |
広島市安佐南区西原6丁目 |
アストラムライン 西原駅/徒歩10分 |
|
|---|---|---|---|---|---|---|
|
相武台団地1505号棟 500万円
|
3DK |
49.37㎡ (内法) |
築58年 |
相模原市南区相武台団地1丁目 |
小田急電鉄小田原線 小田急相模原駅/徒歩18分 |
|
|
クラッシィタワー新宿御苑 29,000万円
|
2LDK |
74.92㎡ (壁芯) |
築2年 |
新宿区四谷4丁目 |
東京メトロ丸ノ内線 新宿御苑前駅/徒歩5分 |
|
|
新山下ベイシティ第六号棟 5,990万円
|
3LDK |
92.82㎡ (壁芯) |
築33年 |
横浜市中区新山下3丁目 |
横浜高速鉄道MM線 元町・中華街駅/徒歩18分 |
|
|
ライオンズ城岳南 4,480万円
|
3LDK |
70.11㎡ |
築17年 |
那覇市壺川1丁目 |
沖縄都市モノレール 壺川駅/徒歩10分 |
|
|
グリーンコーポ淵野辺 2,480万円
|
3LDK |
59.98㎡ (壁芯) |
築40年 |
相模原市中央区淵野辺本町2丁目 |
横浜線 淵野辺駅/徒歩13分 |
|
|
ウェルフェアグリーン南砂 6,580万円
|
2SLDK |
77.76㎡ (壁芯) |
築43年 |
江東区南砂7丁目 |
東京メトロ東西線 南砂町駅/徒歩4分 |
|
|
サンクタス横濱三ツ沢公園 3,280万円
|
2SLDK |
67.83㎡ (壁芯) |
築26年 |
横浜市保土ケ谷区鎌谷町 |
相模鉄道本線 星川駅/徒歩17分 |
|
|
サニータウン堀木5号棟 1,700万円
|
3LDK |
74.88㎡ (壁芯) |
築43年 |
四日市市堀木1丁目 |
近鉄名古屋線 近鉄四日市駅/徒歩8分 |
|
|
ライオンズマンション京成大久保 2,580万円
|
3LDK |
59.70㎡ (壁芯) |
築39年 |
習志野市本大久保5丁目 |
京成電鉄本線 京成大久保駅/徒歩11分 |
|
|
サンライトパストラル弐番街A棟 2,588万円
|
4LDK |
86.00㎡ (壁芯) |
築48年 |
松戸市新松戸6丁目 |
千代田・常磐緩行線 新松戸駅/徒歩17分 |
|
|
ライオンズガーデン東船橋 2,790万円
|
3LDK |
59.87㎡ (壁芯) |
築31年 |
船橋市前原西4丁目 |
総武線 東船橋駅/徒歩11分 |
|
|
グランデ・プレミアムビスタ野嵩 EAST 3,690万円
|
2LDK |
60.22㎡ |
築8年 |
宜野湾市野嵩3丁目 |
沖縄都市モノレール てだこ浦西駅/徒歩95分 |
|
|
アルファステイツ県庁前 3,100万円
|
3LDK |
85.57㎡ (壁芯) |
築8年 |
徳島市昭和町2丁目 |
牟岐線 阿波富田駅/徒歩6分 |
|
|
津田沼ハイライズ 3,780万円
|
3LDK |
74.90㎡ (壁芯) |
築40年 |
習志野市津田沼5丁目 |
京成電鉄松戸線 京成津田沼駅/徒歩3分 |
|
|
エレンシア川崎藤崎壱番館 4,480万円
|
3LDK |
70.06㎡ (壁芯) |
築23年 |
川崎市川崎区藤崎4丁目 |
京浜急行電鉄大師線 川崎大師駅/徒歩17分 |
近くの類似おすすめ物件
-

ヴェルディ古市
3,480万円4LDK|89.15㎡|築7年
所在階8階/15階建
可部線 古市橋駅/徒歩6分
掲載写真がより多い
-

ヴェルディ大原駅前フェリス
3,498万円3LDK|78.99㎡|築9年
所在階15階/15階建
アストラムライン 大原駅/徒歩5分
掲載写真がより多い
-

ヴェルディ大原駅前フェリス
3,498万円3LDK|78.99㎡|築9年
所在階15階/15階建
アストラムライン 大原駅/徒歩5分
掲載写真がより多い
-

ポレスター祇園
3,680万円3LDK|71.97㎡|築14年
所在階3階/15階建
可部線 下祇園駅/徒歩11分
掲載写真がより多い
-

L・テーゼ祇園
3,698万円3LDK|83.06㎡|築29年
所在階4階/13階建
可部線 下祇園駅/徒歩5分
掲載写真がより多い