月々の支払い目安:--
POINT
【即内見可・定休日無し】 ◇11階・最上階南向きで陽あたり良好! ◆室内リフォーム実施で新生活を気持ちよくスタート! ◇ご家族の一員ペットとの新生活が可能!
- 間取り
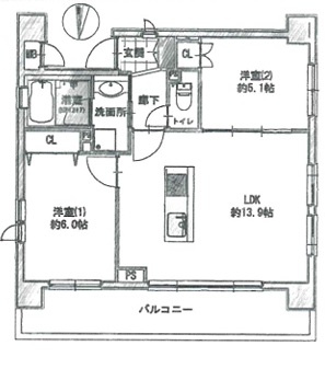
- 1LDK
- 専有面積
- 49.34 ㎡ (壁芯)
- 築年月
- 2011 年1 月(築16 年)
- 土地権利
- 所有権
- 駐車場
- --
- 現況
- 空家
株式会社ウィル 自由が丘営業所
東急東横線・大井町線「自由が丘駅」から徒歩約3分、すずかけ通り沿いに店舗を構え、東京23区内を中心に、不動産の購入・売却はもちろん、リフォームや住宅ローン、ファイナンシャルプラン相談も可能です。
会社情報この物件について
こちらの物件は東急池上線を蓮沼駅で下車し、徒歩4分の場所に位置しています。洗濯物を干したりちょっとした家庭菜園やガーデニングを楽しめるバルコニー付きのお部屋となっており、防犯効果も高い人気のオートロック付き物件となっております。また、外の視線からプライバシーを守りやすい2階以上のお部屋となっております。周辺320m圏内(徒歩4分)には御園中学校もあります。
※「この物件について」に記載の情報は、登録情報をもとに当サイトが掲載するものであり、不動産物件情報を掲載している不動産事業者が掲載するものではありません。
内観・外観
設備
設備画像
主な設備
- キッチン
-
システム
キッチン -
カウンター
キッチン -
IHコンロ
-
ガスコンロ
-
- バス・トイレ
-
追い焚き
-
浴室乾燥機
-
シャワー付
洗面化粧台 -
洗浄便座
-
- 室内設備
-
ウォークイン
クローゼット -
オート
ロック -
TVモニタ付
ドアホン -
宅配
ボックス
-
- 特徴
-
ペット
相談可 -
エレベーター
-
南向き
-
駐車場付
-
その他設備
都市ガス、バス・トイレ別、システムキッチン、冷房、ウォークインクローゼット、室内洗濯機置場、オートロック、エレベーター、バルコニー、宅配ボックス、駐輪場、デザイナーズ、カウンターキッチン、ゴミ出し24時間OK、洗面所独立、全居室収納、シューズインクローゼット、眺望良好
周辺情報
- 周辺の歯医者
読込中
- 周辺の医療機関
読込中
- 周辺の駅
読込中
- 周辺の銀行
読込中
- 周辺のパン屋
読込中
- その他の周辺施設を探す
ハザード情報
物件周辺の土砂、浸水、津波、
地震の情報を地図で確認できます。
※周辺情報は「
出典一覧(施設情報)
」のデータを元に当サイトが独自の方法で抽出し掲載しているものです。不動産物件情報を提供している不動産事業者が掲載するものでありません。
※周辺情報は移転や閉鎖等により情報が最新ではない、正しくない場合があります。詳しくは不動産会社にお問い合わせのうえ、ご確認をお願い致します。
物件概要
- 価格
- 6,280
万円
--
ローン詳細 - 管理費等
- 13,200 円
- 修繕積立金
- 15,840 円
- 修繕積立基金
- --
- 間取り
- 1LDK
- 専有面積
- 49.34 ㎡ (壁芯)
- バルコニー
- 6.22 ㎡
- 駐車場
- --
- 築年月
- 2011 年 1 月(築 16 年)
- 住所
- 東京都大田区西蒲田7丁目54 地図を見る
- 交通
東急池上線 蓮沼駅/徒歩4分
--
--
- 総戸数
- 40 戸
- 主要採光面
- 南
- 建物構造
- RC 造
- 用途地域
- 商業地域
- 土地権利
- 所有権
- 国土法届出
- 不要
- 借地料
- --
- 借地期間
- --
- 管理
- 管理員:巡回、管理形態:全部委託、管理会社:青山メイン企画
- 現況
- 空家 実際に見学したい
- 引渡し
- 相談
- 取引態様
- 仲介
- その他費用
- --
- その他条件
- 南向き、ペット相談可
- 備考
- 施工会社:スミセキ・コンテック
◆東急池上線「蓮沼」駅まで徒歩約4分と利便性の高い立地
◆複数駅複数路線利用可能で多方面へのアクセスも良好
◆大切なペットと過ごせるマンション
◆監視機能付きエレベーター設置でセキュリティにも配慮!
◆不在時でも荷物の受け取りに便利な宅配ボックス利用可能!
◆24時間ゴミ出し可能!お部屋はいつでもすっきり!
◆LDKは約15帖、洋室はゆったり約6.7帖の1LDK!
◆リビングが見渡せる対面キッチン採用!
◆最上階・南向きのお部屋につき、陽当たり・眺望良好!
◆WICやSICで付きで、お部屋の空間を有効に使えます!
◆リフォーム実施で、新生活のスタートにぴったりなお住まい!
【営業時間 10:00~19:00】
上記時間はお電話が繋がりやすくなっております。お気軽にご連絡下さい!
現地を見学される場合はご見学予約ボタンより
ご希望の日時をご記入いただけますとスムーズにご案内が可能です。
~住宅ローン~
諸費用込融資や築年数の古い物件のローンも得意としており、最適な銀行をご提案します。
~リフォーム~
理想の間取り、テイストを作り上げられます!リフォームプランナーの同行も可能です。 - 周辺施設
- 【小学校】矢口東小学校 480m
【中学校】御園中学校 320m - 物件番号
- 313004655870
- 自社管理番号
- 1491230001949
- 登録日
- 2026/03/11
- 有効期限
- 2026/04/06
※情報提供元:LIFULL HOME'S
会社情報
取り扱い不動産会社
- 住所
- 東京都目黒区自由が丘1丁目14-10 1F
- 営業時間など
- 営業時間/10:00~19:00
火曜・水曜も営業しております
定休日/年末年始 - 免許番号
- 国土交通大臣(5)第6447号
- 所属団体
- その他
- 保証協会
- 営業保証金供託済
電話で問合せ( 無料 )
0037-634-32786お問い合わせ番号「29761-3095」
※光IP 電話、及びIP 電話からはご利用になれません
※情報元の「LIFULL HOME'S」掲載店舗に連絡されます
※不動産会社がお電話に出られなかった場合、株式会社LIFULLは電話会社が提供するサービスを介してお客様の発信者番号を受領後、折り返し専用の電話番号を発番してお問合せの不動産会社に通知します(お客様の発信者番号がお問合せの不動産会社に通知されることはございません)
物件に関するお問い合わせ
最近見た物件と比較
近くの類似おすすめ物件
-

大田区千鳥1丁目 6階建 53.14㎡
6,080万円2LDK|53.14㎡|築23年
所在階2階/6階建
東急池上線 千鳥町駅/徒歩6分
掲載写真がより多い
-

ライフレビュー久が原
6,080万円2LDK|53.14㎡|築23年
所在階2階/6階建
東急池上線 千鳥町駅/徒歩6分
-

ライフレビュー久が原
6,080万円2LDK|53.14㎡|築23年
所在階2階/6階建
東急池上線 千鳥町駅/徒歩6分
-

大田区山王1丁目 10階建 55.00㎡
6,080万円2LDK|55.00㎡|築42年
所在階5階/10階建
京浜東北・根岸線 大森駅/徒歩13分
-

ライフレビュー久が原
6,080万円2LDK|53.14㎡|築23年
所在階2階/6階建
東急池上線 千鳥町駅/徒歩6分
掲載写真がより多い