月々の支払い目安:--
POINT
【Professional】・・・全エージェント『宅地建物取引士』&『住宅ローンアドバイザー』
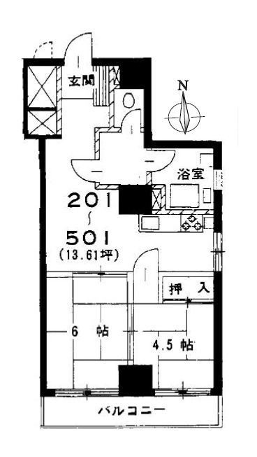
- 間取り
- 1LDK
- 専有面積
- 42.12 ㎡ (壁芯)
- 築年月
- 1978 年10 月(築48 年)
- 土地権利
- 所有権
- 駐車場
- 空無
- 現況
- 空家
株式会社東宝ハウス品川
創業49年。株式会社東宝ハウスホールディングス(東宝ハウスライフソリューションズグループ)です!!東宝ハウス品川は都心・城南・湾岸エリアのマンション売買専門の会社です。お気軽にお問い合わせ下さい。
会社情報この物件について
こちらの物件は徒歩5分の場所に位置しています。ペット飼育を相談(飼育できるペットの種類は必ず事前にご相談ください)でき、洗濯物を干したりちょっとした家庭菜園やガーデニングを楽しめるバルコニー付きのお部屋となっております。また、大切な自宅の防犯や不審者対策として防犯カメラが設置されております。周辺204m圏内(徒歩3分)にはスーパーもあります。
※「この物件について」に記載の情報は、登録情報をもとに当サイトが掲載するものであり、不動産物件情報を掲載している不動産事業者が掲載するものではありません。
内観・外観
設備
設備画像
主な設備
- キッチン
-
システム
キッチン -
カウンター
キッチン -
IHコンロ
-
ガスコンロ
-
- バス・トイレ
-
追い焚き
-
浴室乾燥機
-
シャワー付
洗面化粧台 -
洗浄便座
-
- 室内設備
-
ウォークイン
クローゼット -
オート
ロック -
TVモニタ付
ドアホン -
宅配
ボックス
-
- 特徴
-
ペット
相談可 -
エレベーター
-
南向き
-
駐車場付
-
その他設備
公営水道、都市ガス、下水、バス・トイレ別、三口コンロ、システムキッチン、シャワー付洗面化粧台、ウォークインクローゼット、室内洗濯機置場、オートロック、エレベーター、バルコニー、フローリング、角部屋、温水洗浄便座、カウンターキッチン、浴室乾燥機、洗面所独立、防犯カメラ、全居室収納、クローゼット、シューズインクローゼット、オートバス、瑕疵保証(不動産会社独自)付、修繕・点検の記録、浄水器・活水器、ワイドバルコニー、全室フローリング、セキュリティー充実、眺望良好
周辺情報
- 周辺の歯医者
読込中
- 周辺の医療機関
読込中
- 周辺の駅
読込中
- 周辺の銀行
読込中
- 周辺のパン屋
読込中
- その他の周辺施設を探す
ハザード情報
物件周辺の土砂、浸水、津波、
地震の情報を地図で確認できます。
※周辺情報は「
出典一覧(施設情報)
」のデータを元に当サイトが独自の方法で抽出し掲載しているものです。不動産物件情報を提供している不動産事業者が掲載するものでありません。
※周辺情報は移転や閉鎖等により情報が最新ではない、正しくない場合があります。詳しくは不動産会社にお問い合わせのうえ、ご確認をお願い致します。
物件概要
- 価格
- 7,699
万円
--
ローン詳細 - 管理費等
- 12,410 円
- 修繕積立金
- 10,710 円
- 修繕積立基金
- --
- 間取り
- 1LDK
- 専有面積
- 42.12 ㎡ (壁芯)
- バルコニー
- 5.33 ㎡
- 駐車場
- 空無
- 築年月
- 1978 年 10 月(築 48 年)
- 住所
- 東京都港区東麻布2丁目5-1 地図を見る
- 交通
都営 大江戸線 赤羽橋駅/徒歩5分
--
--
- 総戸数
- 32 戸
- 主要採光面
- 南東
- 建物構造
- RC 造
- 用途地域
- --
- 土地権利
- 所有権
- 国土法届出
- 不要
- 借地料
- --
- 借地期間
- --
- 管理
- 管理員:巡回、管理形態:全部委託、管理組合:有、管理会社:グローブシップ
- 現況
- 空家 実際に見学したい
- 引渡し
- 相談
- 取引態様
- 仲介
- その他費用
- --
- その他条件
- ペット相談可
- 備考
- 施工会社:第一建設工業
《本日見学可》当日予約OK!お電話をして頂けるとスムーズに内覧のご案内ができます。営業時間内(9:00~21:00)は下記電話フォームからお問い合わせ出来ます。
【100%ご自宅送迎での内覧】or【オンライン内覧】 好評実施中!
東宝ハウスグループ唯一のマンション売買専門の会社です。 - 周辺施設
- 【小学校】港区立麻布小学校 800m
【中学校】港区立六本木中学校 950m
【コンビニ】コンビニ 304m
【スーパー】スーパー 204m
【総合病院】総合病院 594m - 物件番号
- 313004594816
- 自社管理番号
- 1357690017790
- 登録日
- 2025/12/15
- 有効期限
- 2026/04/06
※情報提供元:LIFULL HOME'S
会社情報
取り扱い不動産会社
- 住所
- 東京都品川区北品川1丁目13-3
- 営業時間など
- 営業時間/ 9:00~20:00
定休日/毎週水曜日 - 免許番号
- 東京都知事(02)第100801号
- 所属団体
- (公社)首都圏不動産公正取引協議会、(公社)東京都宅地建物取引業協会
- 保証協会
- (公社)全国宅地建物取引業保証協会
電話で問合せ( 無料 )
0037-634-53396お問い合わせ番号「18844-3098」
※光IP 電話、及びIP 電話からはご利用になれません
※情報元の「LIFULL HOME'S」掲載店舗に連絡されます
※不動産会社がお電話に出られなかった場合、株式会社LIFULLは電話会社が提供するサービスを介してお客様の発信者番号を受領後、折り返し専用の電話番号を発番してお問合せの不動産会社に通知します(お客様の発信者番号がお問合せの不動産会社に通知されることはございません)
物件に関するお問い合わせ
最近見た物件と比較
|
閲覧中
麻布イースト 7,699万円
|
1LDK |
42.12㎡ (壁芯) |
築48年 |
港区東麻布2丁目 |
都営 大江戸線 赤羽橋駅/徒歩5分 |
|
|---|---|---|---|---|---|---|
|
パークシティ大崎 ザ レジデンス 10,480万円
|
1LDK |
42.38㎡ (壁芯) |
築11年 |
品川区北品川5丁目 |
山手線 大崎駅/徒歩4分 |
|
|
ウインベルガーデン豊田 4,689万円
|
3LDK |
75.69㎡ (壁芯) |
築26年 |
日野市旭が丘1丁目 |
中央本線 豊田駅/徒歩8分 |
|
|
プライムパークス品川シーサイドザ・レジデンス 13,100万円
|
3LDK |
70.32㎡ (壁芯) |
築8年 |
品川区東大井1丁目 |
りんかい線 品川シーサイド駅/徒歩6分 |
|
|
角の部屋「パークシティ成城」成城Selection 13,980万円
|
1SLDK |
119.44㎡ (壁芯) |
築24年 |
世田谷区成城4丁目 |
小田急電鉄小田原線 喜多見駅/徒歩16分 |
|
|
ライオンズタワー上野黒門町 13,500万円
|
1LDK |
52.91㎡ (壁芯) |
築21年 |
台東区上野1丁目 |
東京メトロ千代田線 湯島駅/徒歩1分 |
|
|
カーサ大井町 9,680万円
|
2LDK |
49.88㎡ (壁芯) |
築28年 |
品川区東大井5丁目 |
京浜東北・根岸線 大井町駅/徒歩4分 |
|
|
ウインベルガーデン豊田 4,689万円
|
3LDK |
75.69㎡ (壁芯) |
築26年 |
日野市旭が丘1丁目 |
中央本線 豊田駅/徒歩8分 |
|
|
オープンレジデンス白金台 11,880万円
|
2LDK |
66.18㎡ (壁芯) |
築15年 |
品川区上大崎1丁目 |
山手線 目黒駅/徒歩7分 |
|
|
ロイヤルシーズン瀬田 12,500万円
|
2LDK |
79.17㎡ (壁芯) |
築18年 |
世田谷区瀬田4丁目 |
東急田園都市線 用賀駅/徒歩14分 |
|
|
プラウド五反田 6,080万円
|
1K |
26.02㎡ (壁芯) |
築3年 |
品川区西五反田2丁目 |
山手線 五反田駅/徒歩5分 |
|
|
氷川台パークホームズ 3,990万円
|
2LDK |
54.67㎡ (壁芯) |
築43年 |
練馬区氷川台4丁目 |
東京メトロ有楽町線 氷川台駅/徒歩5分 |
|
|
セイガステージ中村橋 7,590万円
|
3LDK |
60.25㎡ (壁芯) |
築23年 |
練馬区中村1丁目 |
西武池袋・豊島線 練馬駅/徒歩10分 |
|
|
港区芝4丁目 36階建 70.31㎡ 28,000万円
|
2LDK |
70.31㎡ (壁芯) |
築20年 |
港区芝4丁目 |
山手線 田町駅/徒歩5分 |
|
|
トーワマンション 2,180万円
|
2DK |
41.55㎡ (壁芯) |
築53年 |
品川区東大井4丁目 |
京浜急行電鉄本線 鮫洲駅/徒歩1分 |
|
|
世田谷区瀬田1丁目 4階建 52.95㎡ 9,800万円
|
2LDK |
52.95㎡ |
築20年 |
世田谷区瀬田1丁目 |
東急大井町線 上野毛駅/徒歩7分 |
近くの類似おすすめ物件
-

麻布永坂レジデンス
7,499万円2LDK|45.00㎡|築56年
所在階2階/11階建
東京メトロ南北線 麻布十番駅/徒歩4分
-

麻布永坂レジデンス
7,499万円2LDK|45.00㎡|築56年
所在階2階/11階建
東京メトロ南北線 麻布十番駅/徒歩4分
-

秀和麻布永坂レジデンス
7,499万円2LDK|42.04㎡|築56年
所在階2階/11階建
東京メトロ南北線 麻布十番駅/徒歩4分
-

ノア芝大門
7,680万円1LDK|45.50㎡|築44年
所在階10階/12階建
都営 大江戸線 大門駅/徒歩2分
-

秀和第2北青山レジデンス
7,850万円2LDK|45.50㎡|築54年
所在階5階/8階建
東京メトロ銀座線 外苑前駅/徒歩4分