東京都中央区晴海2丁目|月島駅から徒歩12分|中央区(東京都)の中古マンション

外観

外観

22,800万円

月々の支払い目安:--

ローン詳細

\ 人気物件は決まるのが早い!まずはお問合せを /

メールアイコン 物件の資料をもらう 3項目のみ入力すればOK 無料

掲載終了まであと12

所在地・交通

東京都中央区晴海2丁目

東京メトロ有楽町線 月島駅/徒歩12分

地図を見る

POINT

晴海運河を望む南東角部屋。パークタワー晴海、82平米超えの開放的な3LDK

間取り
3LDK
専有面積
82.85 ㎡ (壁芯)
築年月
2019 年2 月(築8 年)
土地権利
所有権
駐車場
空無
現況
居住中
実際に見学したい

株式会社ケーコーポレーション 白山上店

当社は三田線白山駅前でインターネットを駆使した提案型の営業スタイルを展開しています。賃貸管理物件は約10,000件、又、多数の方に住まいを購入いただいています。お問い合わせをお待ちしております。

会社情報

この物件について

この物件は東京メトロ有楽町線を月島駅で下車し、徒歩12分の場所に位置しています。外の視線からプライバシーを守りやすい2階以上のお部屋となっており、ペット飼育を相談(飼育できるペットの種類は必ず事前にご相談ください)できます。また、防犯効果も高い人気のオートロック付き物件となっております。5部屋で構成されており、物件内で一番広いお部屋はリビングダイニングで15.60帖です。

※「この物件について」に記載の情報は、登録情報をもとに当サイトが掲載するものであり、不動産物件情報を掲載している不動産事業者が掲載するものではありません。

内観・外観

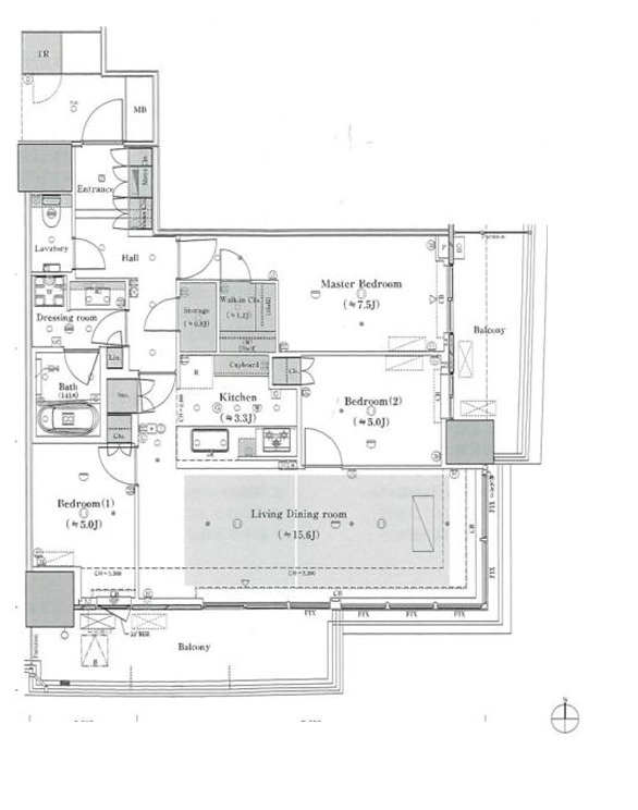
間取り図

間取り 拡大

3LDK

( リビングダイニング 15.6帖 キッチン 3.3帖 洋室 7.5帖 洋室 5.6帖 洋室 5帖 WIC+SIC+Sto+TR )

専有面積
82.85 ㎡ (壁芯)
バルコニー
20.36 ㎡
建物構造
RC
所在階 / 階数
6 階 / 48 階建(地下1階)

写真

\ 人気物件は決まるのが早い!まずはお問合せを /

メールアイコン 物件の資料をもらう 3項目のみ入力すればOK 無料

掲載終了まであと12

この物件を共有・保存する

設備

設備画像

主な設備

キッチン
  • システムキッチン

    システム
    キッチン

  • カウンターキッチン

    カウンター
    キッチン

  • IHコンロ

    IHコンロ

  • ガスコンロ

    ガスコンロ

バス・トイレ
  • 追い焚き

    追い焚き

  • 浴室乾燥機

    浴室乾燥機

  • シャワー付洗面化粧台

    シャワー付
    洗面化粧台

  • 洗浄便座

    洗浄便座

室内設備
  • ウォークインクローゼット

    ウォークイン
    クローゼット

  • オートロック

    オート
    ロック

  • TVモニタ付ドアホン

    TVモニタ付
    ドアホン

  • 宅配ボックス

    宅配
    ボックス

特徴
  • ペット相談可

    ペット
    相談可

  • エレベーター

    エレベーター

  • 南向き

    南向き

  • 駐車場付

    駐車場付

その他設備

公営水道、都市ガス、下水、専用バス、専用トイレ、バス・トイレ別、三口コンロ、システムキッチン、エアコン、トランクルーム、ウォークインクローゼット、室内洗濯機置場、オートロック、エレベーター、バルコニー、宅配ボックス、駐輪場、バイク置き場、角部屋、床暖房、TVドアホン、カウンターキッチン、免震構造、制震構造、キッズルーム、ゴミ出し24時間OK、洗面所独立、ディスポーザー、全居室収納、クローゼット、下駄箱、長期優良住宅通知書

設備情報について質問する

\ 人気物件は決まるのが早い!まずはお問合せを /

メールアイコン 物件の資料をもらう 3項目のみ入力すればOK 無料

掲載終了まであと12

この物件を共有・保存する

周辺情報

周辺の歯医者

読込中

周辺の医療機関

読込中

周辺の駅

読込中

周辺の銀行

読込中

周辺のパン屋

読込中

その他の周辺施設を探す
学区や周辺について質問したい

ハザード情報

物件周辺の土砂、浸水、津波、
地震の情報を地図で確認できます。

ハザードマップを確認する

※周辺情報は「 出典一覧(施設情報) 」のデータを元に当サイトが独自の方法で抽出し掲載しているものです。不動産物件情報を提供している不動産事業者が掲載するものでありません。
※周辺情報は移転や閉鎖等により情報が最新ではない、正しくない場合があります。詳しくは不動産会社にお問い合わせのうえ、ご確認をお願い致します。

\ 人気物件は決まるのが早い!まずはお問合せを /

メールアイコン 物件の資料をもらう 3項目のみ入力すればOK 無料

掲載終了まであと12

この物件を共有・保存する

物件概要

価格
22,800 万円

--

ローン詳細
管理費等
26,930 円
修繕積立金
14,080 円
修繕積立基金
--
間取り
3LDK ( リビングダイニング 15.6帖 キッチン 3.3帖 洋室 7.5帖 洋室 5.6帖 洋室 5帖 WIC+SIC+Sto+TR )
専有面積
82.85 ㎡ (壁芯)
バルコニー
20.36 ㎡
駐車場
空無
築年月
2019 年 2 月(築 8 年)
住所
東京都中央区晴海2丁目 地図を見る
交通

東京メトロ有楽町線 月島駅/徒歩12分

--

--

総戸数
1076 戸
主要採光面
建物構造
RC 造
用途地域
準工業地域
土地権利
所有権
国土法届出
不要
借地料
--
借地期間
--
管理
管理員:常駐、管理形態:全部委託、管理組合:有、管理会社:三井不動産レジデンシャルサービス
引渡し
相談
取引態様
仲介
その他費用
インターネット使用料:2,200円
自治会費:150円
その他条件
南向き、楽器相談、ペット対応
備考
施工会社:大林組
〇三井不動産レジデンシャル旧分譲の地上48階建のタワーレジデンス 〇免震構造+連結制震構造を併用したハイブリット構造!共用施設充実!ペット可♪  〇都心に住みながら自然を身近に感じる住環境 広大な敷地を活用した充実の施設・設備 〇街全体が5つの個性的なゾーンに分けられテーマパークのような豊かな暮らし 〇居住者専用のシャトルバスあり お電話頂けると、お話が早く進みます。お気軽にお問い合わせ下さい。
物件番号
313004530987
自社管理番号
1004590047282
登録日
2025/12/09
有効期限
2026/04/27

※情報提供元:LIFULL HOME'S

会社情報

取り扱い不動産会社

株式会社ケーコーポレーション 白山上店
住所
東京都文京区向丘1丁目9-26 
営業時間など
営業時間/ 9:30~18:30
日祝 9:30~18:00
定休日/毎週水曜日
免許番号
東京都知事(9)第54460号
所属団体
(公社)首都圏不動産公正取引協議会、(公社)全日本不動産協会東京都本部、(公財)東日本不動産流通機構
保証協会
(公社)不動産保証協会

物件に関するお問い合わせ

必須
必須
必須

※携帯電話でドメイン指定受信を利用している場合は、「chintaistyle.jp」「k-co.jp」を解除してください。

あなたにぴったりの物件情報などをお届けします。

確認ページへ進む

近くの類似おすすめ物件

東京都中央区の新着物件情報

現在00件保存されています。

残り00件追加することができます。

お気に入り物件一覧を見る

間隔を空けてお試しください。

検討した人が1人います