月々の支払い目安:--
POINT
私たち東宝ハウス城東は不動産売買を通じて、お客様一人一人と誠実に向き合い、これからの暮らしに「安心」と「満足」をお届けし続けていきます。
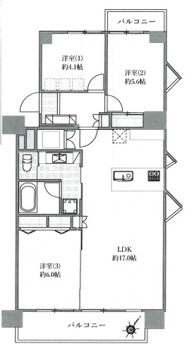
- 間取り
- 3LDK
- 専有面積
- 75.18 ㎡ (壁芯)
- 築年月
- 1974 年12 月(築52 年)
- 土地権利
- 所有権
- 駐車場
- 空無
- 現況
- 空家
株式会社東宝ハウス城東
東宝ハウス城東は、関東一円で20社を展開する東宝ハウスホールディングスの一員です。お客様一人ひとりに、グループのネットワークとスケールメリットを最大限に活かした価値の高いサービスをお届けします。
会社情報この物件について
こちらの物件は東京メトロ東西線を行徳駅で下車し、徒歩10分の場所に位置しています。外の視線からプライバシーを守りやすい2階以上のお部屋となっており、見知らぬ訪問者への対応も安心なモニター付きドアホンが付いております。また、採光面が多く生活音が響きにくい角部屋です。
※「この物件について」に記載の情報は、登録情報をもとに当サイトが掲載するものであり、不動産物件情報を掲載している不動産事業者が掲載するものではありません。
内観・外観
設備
設備画像
主な設備
- キッチン
-
システム
キッチン -
カウンター
キッチン -
IHコンロ
-
ガスコンロ
-
- バス・トイレ
-
追い焚き
-
浴室乾燥機
-
シャワー付
洗面化粧台 -
洗浄便座
-
- 室内設備
-
ウォークイン
クローゼット -
オート
ロック -
TVモニタ付
ドアホン -
宅配
ボックス
-
- 特徴
-
ペット
相談可 -
エレベーター
-
南向き
-
駐車場付
-
その他設備
バス・トイレ別、三口コンロ、システムキッチン、給湯、追焚機能、室内洗濯機置場、エレベーター、フローリング、駐輪場、バイク置き場、角部屋、TVドアホン、温水洗浄便座、カウンターキッチン、浴室乾燥機、耐震構造(新耐震基準適合)、洗面所独立、食器洗い乾燥機、全居室収納、クローゼット、下駄箱、節水型トイレ、全室フローリング
この物件を共有・保存する
周辺情報
- 周辺の歯医者
読込中
- 周辺の医療機関
読込中
- 周辺の駅
読込中
- 周辺の銀行
読込中
- 周辺のパン屋
読込中
- その他の周辺施設を探す
ハザード情報
物件周辺の土砂、浸水、津波、
地震の情報を地図で確認できます。
※周辺情報は「
出典一覧(施設情報)
」のデータを元に当サイトが独自の方法で抽出し掲載しているものです。不動産物件情報を提供している不動産事業者が掲載するものでありません。
※周辺情報は移転や閉鎖等により情報が最新ではない、正しくない場合があります。詳しくは不動産会社にお問い合わせのうえ、ご確認をお願い致します。
この物件を共有・保存する
物件概要
- 価格
- 3,380
万円
--
ローン詳細 - 管理費等
- 13,080 円
- 修繕積立金
- 20,910 円
- 修繕積立基金
- --
- 間取り
- 3LDK
- 専有面積
- 75.18 ㎡ (壁芯)
- バルコニー
- --
- 駐車場
- 空無
- 築年月
- 1974 年 12 月(築 52 年)
- 住所
- 千葉県市川市行徳駅前4丁目8-16 地図を見る
- 交通
東京メトロ東西線 行徳駅/徒歩10分
--
--
- 総戸数
- 100 戸
- 主要採光面
- 南西
- 建物構造
- RC 造
- 用途地域
- --
- 土地権利
- 所有権
- 国土法届出
- 不要
- 借地料
- --
- 借地期間
- --
- 管理
- 管理員:日勤、管理形態:自主管理
- 現況
- 空家 実際に見学したい
- 引渡し
- 相談
- 取引態様
- 仲介
- その他費用
- --
- その他条件
- --
- 備考
- 空き状況確認の為、お電話をして頂けるとスムーズにご案内ができます。営業時間内(9:00~21:00)は下記電話フォームからお問い合わせ出来ます。 【100%ご自宅送迎での内覧】or【オンライン内覧】 好評実施中!
- 物件番号
- 312001233070
- 自社管理番号
- 1267650036591
- 登録日
- 2026/04/18
- 有効期限
- 2026/05/09
※情報提供元:LIFULL HOME'S
会社情報
取り扱い不動産会社
- 住所
- 東京都足立区千住中居町28-5 Jプロ千住ビル3F
- 営業時間など
- 営業時間/ 9:00~21:00
定休日/年末年始 - 免許番号
- 東京都知事(3)第97691号
- 所属団体
- (公社)首都圏不動産公正取引協議会、(公社)東京都宅地建物取引業協会
- 保証協会
- (公社)全国宅地建物取引業保証協会
物件に関するお問い合わせ
最近見た物件と比較
|
閲覧中
行徳アーバンライフ 3,380万円
|
3LDK |
75.18㎡ (壁芯) |
築52年 |
市川市行徳駅前4丁目 |
東京メトロ東西線 行徳駅/徒歩10分 |
|
|---|---|---|---|---|---|---|
|
シーアイマンション松戸秋山ステーションプラザ 3,980万円
|
3LDK |
66.96㎡ (壁芯) |
築30年 |
松戸市秋山1丁目 |
北総線 秋山駅/徒歩2分 |
|
|
松戸ハイム 2,180万円
|
3LDK |
70.43㎡ |
築53年 |
松戸市岩瀬 |
常磐線 松戸駅/徒歩8分 |
|
|
日神パレステージわらびリノプレイス 3,390万円
|
3LDK |
66.67㎡ (壁芯) |
築19年 |
川口市芝富士1丁目 |
京浜東北・根岸線 蕨駅/徒歩18分 |
|
|
南浦和ハイム 2,999万円
|
2LDK |
59.17㎡ (壁芯) |
築49年 |
さいたま市南区南浦和2丁目 |
京浜東北・根岸線 南浦和駅/徒歩4分 |
|
|
チサンマンション浦和県庁前 4,280万円
|
3LDK |
62.13㎡ (壁芯) |
築35年 |
さいたま市浦和区高砂3丁目 |
京浜東北・根岸線 浦和駅/徒歩14分 |
|
|
ブリーズコート蕨塚越テラス 5,380万円
|
3LDK |
67.64㎡ (壁芯) |
築12年 |
蕨市塚越7丁目 |
京浜東北・根岸線 西川口駅/徒歩7分 |
|
|
アークビュー金沢八景 2,980万円
|
3LDK |
71.44㎡ |
築31年 |
横浜市金沢区六浦3丁目 |
京浜急行電鉄逗子線 六浦駅/徒歩13分 |
|
|
パラッシオ上杉山 1,690万円
|
4LDK |
77.54㎡ (壁芯) |
築48年 |
仙台市青葉区堤通雨宮町 |
仙山線 北仙台駅/徒歩9分 |
近くの類似おすすめ物件
-

メゾン本八幡
3,180万円3LDK|66.46㎡|築52年
所在階2階/5階建
総武線 本八幡駅/徒歩4分
-

行徳ニューグランドハイツD棟
3,288万円3LDK|79.41㎡|築47年
所在階10階/10階建
東京メトロ東西線 妙典駅/徒歩19分
-

行徳ニューグランドハイツD棟
3,288万円3LDK|79.41㎡|築47年
所在階10階/10階建
東京メトロ東西線 妙典駅/徒歩19分
-

行徳ニューグランドハイツD棟
3,288万円3LDK|79.41㎡|築47年
所在階10階/10階建
東京メトロ東西線 妙典駅/徒歩19分
-

行徳ニューグランドハイツD棟
3,288万円3LDK|79.41㎡|築47年
所在階10階/10階建
東京メトロ東西線 妙典駅/徒歩19分