市川市(千葉県)の角部屋の中古マンションの購入情報

市川市(千葉県)の角部屋の物件を集めました。窓が多く開放的だから、風通しも日当たりも良好。隣り合う部屋が少ないので騒音も比較的気にならないのがメリットです。

190

↓ チェックした物件をまとめてお問い合わせ

外観:312001220790 中古マンション
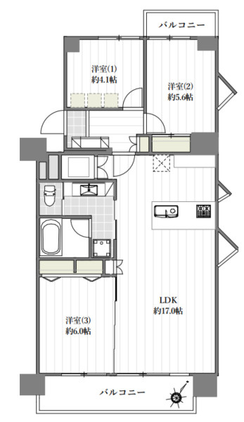
間取り:312001220790
  • 2,699万円
  • 千葉県市川市福栄4丁目
  • 東京メトロ東西線 行徳駅/徒歩15分
  • 3LDK/7階/65.40㎡/築51 年

ヴィンテージマンション「秀和レジデンス」!管理人常駐の為、管理体制良好です☆7階最上階角部屋で陽当り・眺望◎行徳駅まで15分の好立地!嬉しいウォークインクローゼット付きで物が散らかりがちな方でも安心!

  • 2階以上
  • 角部屋
  • 南向き
  • ペット相談可
  • オートロック
  • 追焚機能
  • 駐車場有
  • 小学校
    800m以内
株式会社アルカンジュ不動産

株式会社アルカンジュ不動産は地元千葉を拠点とした地域密着の不動産会社です。弊社では千葉市を中心に自社分譲地が多数ございます。未公開物件もございますので是非一度お問い合わせくださいませ。

その他の情報

外観:312001226081 中古マンション
間取り:312001226081
  • 6,698万円
  • 千葉県市川市市川4丁目
  • 京成電鉄本線 国府台駅/徒歩5分
  • 3LDK/12階/65.08㎡/築4 年

担当のシムラです。ルネ市川国府台2022年築の築浅レジデンス。駅徒歩5分の利便性に加え最上階角部屋ならではの開放的な眺望と陽当たりを享受。3LDKのゆとりある間取りにペット飼育可能という嬉しい条件も◎

  • 2階以上
  • 角部屋
  • 南向き
  • ペット相談可
  • オートロック
  • 追焚機能
  • 駐車場有
  • 小学校
    800m以内
株式会社東宝ハウス松戸

創業2年で570組のご成約を頂いております!皆さまの心地よい家探しをスタッフ全員でサポートします!!住宅ローンのこと、アフターサポートのこと、街のこと、、気になることは何でもご相談ください!!!

その他の情報

外観:312001221044 中古マンション
間取り:312001221044
  • 2,699万円
  • 千葉県市川市福栄4丁目
  • 東京メトロ東西線 行徳駅/徒歩15分
  • 3LDK/7階/65.40㎡/築51 年

新規内装リノベーション物件で室内ピカピカの新生活を。『お住まい購入』は資金計画や銀行選びがとっても大切。お家を見るのも大事ですが購入計画もしっかり準備して進めていきましょう&お気軽にお問合せ下さい。

  • 2階以上
  • 角部屋
  • 南向き
  • ペット相談可
  • オートロック
  • 追焚機能
  • 駐車場有
  • 小学校
    800m以内
株式会社東宝ハウス船橋

グループ創業50年。未公開物件を含む豊富な物件のご紹介だけでなく、無理のない資金計画・ローンのご提案、引渡し後のアフターサポートまで「住まい」のご購入をトータルにコンサルティングいたします。

その他の情報

外観:312001188036 中古マンション
間取り:312001188036
  • 2,699万円
  • 千葉県市川市福栄4丁目
  • 東京メトロ東西線 行徳駅/徒歩15分
  • 3LDK/7階/65.40㎡/築51 年
  • 2階以上
  • 角部屋
  • 南向き
  • ペット相談可
  • オートロック
  • 追焚機能
  • 駐車場有
  • 小学校
    800m以内
MEマイホーム計画京葉株式会社

2003年2人で創業し現在6事業21店舗展開、社員数600人。2024年ではグループ成約数2410件と驚異的な販売実績を有するME Group その実績から提携ローン・金利優遇も多数あり。

その他の情報

外観:312001227831 中古マンション
間取り:312001227831
  • 5,780万円
  • 千葉県市川市湊新田
  • 東京メトロ東西線 行徳駅/徒歩8分
  • 3LDK/2階/64.80㎡/築6 年

【利便性を兼ね備えた2021年築の築浅分譲マンション】「行徳」駅徒歩8分 ペット飼育可能、オートロック・宅配ボックス有 お気軽にお問合せください!

  • 2階以上
  • 角部屋
  • 南向き
  • ペット相談可
  • オートロック
  • 追焚機能
  • 駐車場有
  • 小学校
    800m以内
ハウスドゥ 新小岩駅南口 リオン不動産株式会社

新小岩駅周辺を中心として家を買いたい・売りたい・リフォームしたいというお客様に、たくさんの情報を迅速に提供いたします。お家探しに関することなら、ハウスドゥ新小岩駅南口店にお任せください!

その他の情報

外観:312001218363 中古マンション
間取り:312001218363
  • 3,288万円
  • 千葉県市川市幸1丁目
  • 東京メトロ東西線 妙典駅/徒歩19分
  • 3LDK/10階/79.41㎡/築47 年

4棟から成る行徳ニューグランドハイツは総戸数は274戸で、外観はホワイト系の8階建てのフォルムで、敷地内に緑に囲まれた提供公園が設けられ憩いと安らぎの空間が考慮されています。

  • 2階以上
  • 角部屋
  • 南向き
  • ペット相談可
  • オートロック
  • 追焚機能
  • 駐車場有
  • 小学校
    800m以内
株式会社東宝ハウス船橋

グループ創業50年。未公開物件を含む豊富な物件のご紹介だけでなく、無理のない資金計画・ローンのご提案、引渡し後のアフターサポートまで「住まい」のご購入をトータルにコンサルティングいたします。

その他の情報

外観:312001226426 中古マンション
間取り:312001226426
  • 3,280万円
  • 千葉県市川市相之川1丁目
  • 都営 新宿線 一之江駅/徒歩13分
  • 3LDK/2階/60.82㎡/築25 年

角住戸の窓量と、2面以上バルコニー14.61平米で洗濯・換気がスムーズな3LDK。リフォーム・リノベ済、食洗機・浄水器・浴室乾燥など家事設備も充実な邸宅です。ペット可も嬉しいですね。

  • 2階以上
  • 角部屋
  • 南向き
  • ペット相談可
  • オートロック
  • 追焚機能
  • 駐車場有
  • 小学校
    800m以内
株式会社東宝ハウス新小岩

「住まい」を通じて、「今」そして「将来」も、すべてのお客様が豊かで幸せに暮らしていくためのお手伝いをさせていただくこと。それが、私たち東宝ハウス新小岩の仕事です。

その他の情報

外観:312001220507 中古マンション
間取り:312001220507
  • 2,699万円
  • 千葉県市川市福栄4丁目
  • 東京メトロ東西線 行徳駅/徒歩15分
  • 3LDK/7階/65.40㎡/築51 年
  • 2階以上
  • 角部屋
  • 南向き
  • ペット相談可
  • オートロック
  • 追焚機能
  • 駐車場有
  • 小学校
    800m以内
エムイーPLUS城東 株式会社

2003年2人で創業し現在6事業21店舗展開、社員数600人。2024年ではグループ成約数2416件と驚異的な販売実績を有するME Group その実績から提携ローン・金利優遇も多数あり。

その他の情報

外観:312001147734 中古マンション
間取り:312001147734
  • 2,699万円
  • 千葉県市川市福栄4丁目
  • 東京メトロ東西線 行徳駅/徒歩15分
  • 3LDK/7階/65.40㎡/築51 年

私たち東宝ハウス城東は不動産売買を通じて、お客様一人一人と誠実に向き合い、これからの暮らしに「安心」と「満足」をお届けし続けていきます。

  • 2階以上
  • 角部屋
  • 南向き
  • ペット相談可
  • オートロック
  • 追焚機能
  • 駐車場有
  • 小学校
    800m以内
株式会社東宝ハウス城東

東宝ハウス城東は、関東一円で20社を展開する東宝ハウスホールディングスの一員です。お客様一人ひとりに、グループのネットワークとスケールメリットを最大限に活かした価値の高いサービスをお届けします。

その他の情報

外観:312001213254 中古マンション
間取り:312001213254
  • 2,698万円
  • 千葉県市川市福栄1丁目
  • 東京メトロ東西線 南行徳駅/徒歩7分
  • 2SLDK/3階/60.60㎡/築52 年

担当の和田・桑原です。角部屋ならではの開放感!キッチン広め・対面式で人気の間取り!エアコン全室設置可能(先行配管)!新規リノベーション済!本日ご相談できます!

  • 2階以上
  • 角部屋
  • 南向き
  • ペット相談可
  • オートロック
  • 追焚機能
  • 駐車場有
  • 小学校
    800m以内
株式会社東宝ハウス松戸

創業2年で570組のご成約を頂いております!皆さまの心地よい家探しをスタッフ全員でサポートします!!住宅ローンのこと、アフターサポートのこと、街のこと、、気になることは何でもご相談ください!!!

その他の情報

外観:312001226683 中古マンション
間取り:312001226683
  • 5,780万円
  • 千葉県市川市湊新田
  • 東京メトロ東西線 行徳駅/徒歩8分
  • 3LDK/2階/64.80㎡/築6 年

■頭金0円から購入可・新規リノベーション■創業55年・フルサポートをお約束 ■本日ご見学可能・来店不要■現地にて全てサポート致します■ □隙間時間で内覧OK□

  • 2階以上
  • 角部屋
  • 南向き
  • ペット相談可
  • オートロック
  • 追焚機能
  • 駐車場有
  • 小学校
    800m以内
株式会社アイエ

面倒な来社不要!現地完結型でご案内をさせて頂きます。住宅ローンやスケジュール、購入申込等まで全てを現地にて行います。お仕事帰りや買い物帰り等の隙間時間で内覧も可能!創業55年。愛ある家探しを致します。

その他の情報

外観:312001225039 中古マンション
間取り:312001225039
  • 3,480万円
  • 千葉県市川市田尻2丁目
  • 東京メトロ東西線 原木中山駅/徒歩13分
  • 3LDK/5階/67.52㎡/築30 年

当日見学OK、無料送迎OK、キッズルーム有り、是非お任せ下さい♪

  • 2階以上
  • 角部屋
  • 南向き
  • ペット相談可
  • オートロック
  • 追焚機能
  • 駐車場有
  • 小学校
    800m以内
ME不動産千葉株式会社

2003年2人で創業し現在6事業21店舗展開、社員数600人。2024年ではグループ成約数2416件と驚異的な販売実績を有するME Group その実績から提携ローン・金利優遇も多数あり

その他の情報

外観:312001221412 中古マンション
間取り:312001221412
  • 2,699万円
  • 千葉県市川市福栄4丁目
  • 東京メトロ東西線 行徳駅/徒歩15分
  • 3LDK/7階/65.40㎡/築51 年

東京メトロ東西線「行徳」駅まで徒歩15分!角部屋につき陽当り通風良好リノベーション済でキレイな室内。

  • 2階以上
  • 角部屋
  • 南向き
  • ペット相談可
  • オートロック
  • 追焚機能
  • 駐車場有
  • 小学校
    800m以内
センチュリー21千葉リアルティー

千葉県内を熟知した不動産会社です。家を買う前から買った後までトータルプランニングのご提案を致します。購入に向けてわからないこと、不安なことお聞かせください。ご納得頂けるまでトコトンお付き合い致します。

その他の情報

外観:312001173824 中古マンション
間取り:312001173824
  • 2,699万円
  • 千葉県市川市福栄4丁目
  • 東京メトロ東西線 行徳駅/徒歩15分
  • 3LDK/7階/65.40㎡/築51 年

最上階・角部屋!通風良好◎採光たっぷりの明るいお部屋です♪

  • 2階以上
  • 角部屋
  • 南向き
  • ペット相談可
  • オートロック
  • 追焚機能
  • 駐車場有
  • 小学校
    800m以内
ピタットハウス西船橋14号店 株式会社アイ・ユニットコーポレーション

新着物件・毎日更新中!Staffブログも好評中!当社はお客様と「笑顔」を分かち合えるように多数の物件情報とスピーディかつ丁寧なご対応である「レスポンス」の早さをモットーに日々ご対応させて頂いております

その他の情報

外観:312001221836 中古マンション
間取り:312001221836
  • 2,698万円
  • 千葉県市川市福栄1丁目
  • 東京メトロ東西線 南行徳駅/徒歩7分
  • 3LDK/3階/60.60㎡/築52 年

当日見学OK、無料送迎OK、キッズルーム有り、是非お任せ下さい♪

  • 2階以上
  • 角部屋
  • 南向き
  • ペット相談可
  • オートロック
  • 追焚機能
  • 駐車場有
  • 小学校
    800m以内
ME不動産千葉株式会社

2003年2人で創業し現在6事業21店舗展開、社員数600人。2024年ではグループ成約数2416件と驚異的な販売実績を有するME Group その実績から提携ローン・金利優遇も多数あり

その他の情報

外観:312001220433 中古マンション
間取り:312001220433
  • 2,698万円
  • 千葉県市川市福栄1丁目
  • 東京メトロ東西線 南行徳駅/徒歩7分
  • 3LDK/3階/60.60㎡/築52 年
  • 2階以上
  • 角部屋
  • 南向き
  • ペット相談可
  • オートロック
  • 追焚機能
  • 駐車場有
  • 小学校
    800m以内
エムイーPLUS城東 株式会社

2003年2人で創業し現在6事業21店舗展開、社員数600人。2024年ではグループ成約数2416件と驚異的な販売実績を有するME Group その実績から提携ローン・金利優遇も多数あり。

その他の情報

外観:312001210537 中古マンション
間取り:312001210537
  • 2,698万円
  • 千葉県市川市福栄1丁目
  • 東京メトロ東西線 南行徳駅/徒歩7分
  • 3LDK/3階/60.60㎡/築52 年
  • 2階以上
  • 角部屋
  • 南向き
  • ペット相談可
  • オートロック
  • 追焚機能
  • 駐車場有
  • 小学校
    800m以内
MEマイホーム計画京葉株式会社

2003年2人で創業し現在6事業21店舗展開、社員数600人。2024年ではグループ成約数2410件と驚異的な販売実績を有するME Group その実績から提携ローン・金利優遇も多数あり。

その他の情報

外観:312001194697 中古マンション
間取り:312001194697
  • 12,680万円
  • 千葉県市川市八幡3丁目
  • 都営 新宿線 本八幡駅/徒歩1分
  • 4LDK/22階/97.07㎡/築13 年

【本日内覧可能】 都営新宿線「本八幡」駅直結 人気の角部屋!ペット飼育可能!

  • 2階以上
  • 角部屋
  • 南向き
  • ペット相談可
  • オートロック
  • 追焚機能
  • 駐車場有
  • 小学校
    800m以内
株式会社セルフリジェネレーション

当社は、お客様一人ひとりの「今」と「未来」を見据え、最適な住まいのご提案を通じて、豊かで安心できる暮らしを実現します。人生の大切な一歩を支えるパートナーとして丁寧にお手伝いさせていただきます。

その他の情報

外観:312001194181 中古マンション
間取り:312001194181
  • 12,680万円
  • 千葉県市川市八幡3丁目
  • 総武線 本八幡駅/徒歩3分
  • 4LDK/22階/97.07㎡/築13 年

担当のシムラです。グランドターミナル本八幡。 その22階に広がる、約97平米の4LDK。空間のゆとりが、心のゆとりへとつながる設計。 高層階ならではの眺望は、日常に“高さ”という特別感を与えてくれる。

  • 2階以上
  • 角部屋
  • 南向き
  • ペット相談可
  • オートロック
  • 追焚機能
  • 駐車場有
  • 小学校
    800m以内
株式会社東宝ハウス松戸

創業2年で570組のご成約を頂いております!皆さまの心地よい家探しをスタッフ全員でサポートします!!住宅ローンのこと、アフターサポートのこと、街のこと、、気になることは何でもご相談ください!!!

その他の情報

外観:312001213661 中古マンション
間取り:312001213661
  • 3,080万円
  • 千葉県市川市真間4丁目
  • 京成電鉄本線 国府台駅/徒歩10分
  • 4LDK/1階/83.52㎡/築55 年

当日見学OK、無料送迎OK、キッズルーム有り、是非お任せ下さい♪

  • 2階以上
  • 角部屋
  • 南向き
  • ペット相談可
  • オートロック
  • 追焚機能
  • 駐車場有
  • 小学校
    800m以内
ME不動産千葉株式会社

2003年2人で創業し現在6事業21店舗展開、社員数600人。2024年ではグループ成約数2416件と驚異的な販売実績を有するME Group その実績から提携ローン・金利優遇も多数あり

その他の情報

外観:312001226393 中古マンション
間取り:312001226393
  • 2,699万円
  • 千葉県市川市福栄4丁目
  • 東京メトロ東西線 行徳駅/徒歩14分
  • 3LDK/7階/65.40㎡/築51 年

南向き最上階×フルリノベーションの3LDK。全居室収納とウォークインクローゼットで片付けやすく、公園やスーパーが徒歩圏にそろう市川市福栄エリアのファミリー向けマンションです。

  • 2階以上
  • 角部屋
  • 南向き
  • ペット相談可
  • オートロック
  • 追焚機能
  • 駐車場有
  • 小学校
    800m以内
株式会社東宝ハウス新小岩

「住まい」を通じて、「今」そして「将来」も、すべてのお客様が豊かで幸せに暮らしていくためのお手伝いをさせていただくこと。それが、私たち東宝ハウス新小岩の仕事です。

その他の情報

外観:312001220182 中古マンション
間取り:312001220182
  • 2,699万円
  • 千葉県市川市福栄4丁目
  • 東京メトロ東西線 行徳駅/徒歩15分
  • 3LDK/7階/65.00㎡/築51 年

■頭金0円から購入可・新規リノベーション■創業55年・フルサポートをお約束 ■本日ご見学可能・来店不要■現地にて全てサポート致します■ □隙間時間で内覧OK□

  • 2階以上
  • 角部屋
  • 南向き
  • ペット相談可
  • オートロック
  • 追焚機能
  • 駐車場有
  • 小学校
    800m以内
株式会社アイエ

面倒な来社不要!現地完結型でご案内をさせて頂きます。住宅ローンやスケジュール、購入申込等まで全てを現地にて行います。お仕事帰りや買い物帰り等の隙間時間で内覧も可能!創業55年。愛ある家探しを致します。

その他の情報

外観:312001161561 中古マンション
NO IMAGE
  • 2,699万円
  • 千葉県市川市福栄4丁目
  • 東京メトロ東西線 行徳駅/徒歩15分
  • 3LDK/7階/65.40㎡/築51 年

【Professional】・・・徹底した【透明性】と独自の【優位性】

  • 2階以上
  • 角部屋
  • 南向き
  • ペット相談可
  • オートロック
  • 追焚機能
  • 駐車場有
  • 小学校
    800m以内
株式会社東宝ハウス東京

東宝ハウス東京は、関東一円で26社を展開する東宝ハウスライフソリューションズグループの一員です。全てのお客様に、グループのネットワークと企業規模を最大限に活かした価値の高いサービスをお届けします。

その他の情報

外観:312001218052 中古マンション
間取り:312001218052
  • 2,698万円
  • 千葉県市川市福栄1丁目
  • 東京メトロ東西線 南行徳駅/徒歩7分
  • 2SLDK/3階/60.60㎡/築52 年

『お住まい購入』は資金計画や銀行選びがとっても大切です。お家を見るのも大切ですし、購入計画もしっかり準備して進めていきましょう!リフォーム完了につき本日ご内覧可能です♪お気軽にお問合せ下さい!

  • 2階以上
  • 角部屋
  • 南向き
  • ペット相談可
  • オートロック
  • 追焚機能
  • 駐車場有
  • 小学校
    800m以内
株式会社東宝ハウス船橋

グループ創業50年。未公開物件を含む豊富な物件のご紹介だけでなく、無理のない資金計画・ローンのご提案、引渡し後のアフターサポートまで「住まい」のご購入をトータルにコンサルティングいたします。

その他の情報

外観:312001226316 中古マンション
間取り:312001226316
  • 2,180万円
  • 千葉県市川市富浜3丁目
  • 東京メトロ東西線 妙典駅/徒歩10分
  • 3LDK/4階/71.32㎡/築51 年

不安な点やわからないことなどひとつひとつ明確にしながら、一緒に楽しくお住まい探しが出来ればと思います!諸費用を含めた住宅ローンなどについてもお気軽にご相談ください♪

  • 2階以上
  • 角部屋
  • 南向き
  • ペット相談可
  • オートロック
  • 追焚機能
  • 駐車場有
  • 小学校
    800m以内
株式会社東宝ハウス新小岩

「住まい」を通じて、「今」そして「将来」も、すべてのお客様が豊かで幸せに暮らしていくためのお手伝いをさせていただくこと。それが、私たち東宝ハウス新小岩の仕事です。

その他の情報

外観:312001174101 中古マンション
間取り:312001174101
  • 2,999万円
  • 千葉県市川市日之出
  • 東京メトロ東西線 行徳駅/徒歩14分
  • 3SLDK/4階/96.67㎡/築51 年

約100平米の広々空間!南東向きで陽当たり良好!ペット1住戸2匹まで可(1住戸2匹、別途届け出必要)

  • 2階以上
  • 角部屋
  • 南向き
  • ペット相談可
  • オートロック
  • 追焚機能
  • 駐車場有
  • 小学校
    800m以内
ハウスドゥ 新小岩駅南口 リオン不動産株式会社

新小岩駅周辺を中心として家を買いたい・売りたい・リフォームしたいというお客様に、たくさんの情報を迅速に提供いたします。お家探しに関することなら、ハウスドゥ新小岩駅南口店にお任せください!

その他の情報

外観:312001226602 中古マンション
間取り:312001226602
  • 3,288万円
  • 千葉県市川市幸1丁目
  • 東京メトロ東西線 妙典駅/徒歩19分
  • 3LDK/10階/79.41㎡/築47 年

【10階最上階・角部屋!南東向きで陽当り・通風良好!】バス停隣接♪ 大切なペットと暮らせる3LDK!新規内装リフォーム物件! お気軽にお問合せください!

  • 2階以上
  • 角部屋
  • 南向き
  • ペット相談可
  • オートロック
  • 追焚機能
  • 駐車場有
  • 小学校
    800m以内
ハウスドゥ 新小岩駅南口 リオン不動産株式会社

新小岩駅周辺を中心として家を買いたい・売りたい・リフォームしたいというお客様に、たくさんの情報を迅速に提供いたします。お家探しに関することなら、ハウスドゥ新小岩駅南口店にお任せください!

その他の情報

外観:312001180490 中古マンション
間取り:312001180490
  • 4,798万円
  • 千葉県市川市南行徳4丁目
  • 東京メトロ東西線 南行徳駅/徒歩15分
  • 3LDK/6階/71.74㎡/築28 年

【新規リノベーション物件!】南東・南西角住戸・2面バルコニー! 近隣に公園や買い物施設多数♪ペット飼育可能! お気軽にお問合せください!

  • 2階以上
  • 角部屋
  • 南向き
  • ペット相談可
  • オートロック
  • 追焚機能
  • 駐車場有
  • 小学校
    800m以内
ハウスドゥ 新小岩駅南口 リオン不動産株式会社

新小岩駅周辺を中心として家を買いたい・売りたい・リフォームしたいというお客様に、たくさんの情報を迅速に提供いたします。お家探しに関することなら、ハウスドゥ新小岩駅南口店にお任せください!

その他の情報

外観:312001212007 中古マンション
間取り:312001212007
  • 2,698万円
  • 千葉県市川市福栄1丁目
  • 東京メトロ東西線 南行徳駅/徒歩7分
  • 3LDK/3階/60.60㎡/築52 年

角部屋ならではの開放感があるお部屋です。フルリフォーム済みで即入居可能。現地だけでなく周辺環境のご案内もしております。地域密着型の不動産アドバイザーにお任せ下さい。

  • 2階以上
  • 角部屋
  • 南向き
  • ペット相談可
  • オートロック
  • 追焚機能
  • 駐車場有
  • 小学校
    800m以内
株式会社慶和住宅

市川駅徒歩3分!市川・本八幡の新築戸建て・中古戸建て・土地・マンションなどの住まい探しは当店にお任せ下さい。人気のKEIWA-TOWNシリーズを含む慶和売主物件も続々公開中です!

その他の情報

外観:312001208841 中古マンション
間取り:312001208841
  • 2,698万円
  • 千葉県市川市福栄1丁目
  • 東京メトロ東西線 南行徳駅/徒歩7分
  • 3LDK/3階/60.60㎡/築52 年

【角部屋3LDK/内装フルリノベーション物件】東西線「南行徳」駅徒歩7分 全室エアコン設置可能・人気の対面システムキッチン! お気軽にお問合せください!

  • 2階以上
  • 角部屋
  • 南向き
  • ペット相談可
  • オートロック
  • 追焚機能
  • 駐車場有
  • 小学校
    800m以内
ハウスドゥ 新小岩駅南口 リオン不動産株式会社

新小岩駅周辺を中心として家を買いたい・売りたい・リフォームしたいというお客様に、たくさんの情報を迅速に提供いたします。お家探しに関することなら、ハウスドゥ新小岩駅南口店にお任せください!

その他の情報

1ページ目(7ページ中) 次へ
この条件で新着メールを受取る
この検索条件を保存する
追加が完了しました。

現在00件保存されています。(最大5件)

保存した条件一覧を見る

現在00件保存されています。

残り00件追加することができます。

お気に入り物件一覧を見る

間隔を空けてお試しください。

問合せが未完了の物件

エリアを変更 条件を変更
チェックした物件をまとめて 資料請求(無料) お気に入りに追加