習志野駅(千葉県)周辺の3,000万円台の中古マンションの購入情報

習志野駅(千葉県)周辺の3,000万円台の中古マンションの購入情報をご覧いただけます。

39

↓ チェックした物件をまとめてお問い合わせ

外観:312001200893 中古マンション
間取り:312001200893
  • 3,098万円
  • 千葉県船橋市習志野台5丁目
  • 京成電鉄松戸線 習志野駅 徒歩19分
  • 3LDK/2階/84.43㎡/築19 年

〇●日差しの心地よい角部屋の3LDK。リフォーム済みでスグに居住可能。●〇 ■大切なペットとこれからも一緒に暮らせます。 ■LDK広々21帖。2面サッシで全体ぽかぽか。

  • 2階以上
  • 角部屋
  • 南向き
  • ペット相談可
  • オートロック
  • 追焚機能
  • 駐車場有
  • 小学校
    800m以内
東海住宅株式会社 緑が丘支店

「不動産のことなら何でも!」自社物件・仲介・注文建築・分譲住宅・投資・リフォーム・賃貸など多角的な本業を展開する東海住宅は創業50周年を迎えました! 只今不動産買取強化中です!

その他の情報

外観:312001218166 中古マンション

習志野駅まで約1056m

間取り:312001218166
  • 3,380万円
  • 千葉県船橋市薬円台3丁目
  • 京成電鉄松戸線 習志野駅 徒歩15分
  • 3LDK/9階/76.33㎡/築24 年

新規内装リフォーム物件で室内ピカピカの新生活を。『お住まい購入』は資金計画や銀行選びがとっても大切。お家を見るのも大事ですが購入計画もしっかり準備して進めていきましょう&お気軽にお問合せ下さい。

  • 2階以上
  • 角部屋
  • 南向き
  • ペット相談可
  • オートロック
  • 追焚機能
  • 駐車場有
  • 小学校
    800m以内
株式会社東宝ハウス船橋

グループ創業50年。未公開物件を含む豊富な物件のご紹介だけでなく、無理のない資金計画・ローンのご提案、引渡し後のアフターサポートまで「住まい」のご購入をトータルにコンサルティングいたします。

その他の情報

外観:312001211752 中古マンション

【近い!】 習志野駅まで約718m

間取り:312001211752
  • 3,080万円
  • 千葉県船橋市習志野台4丁目
  • 京成電鉄松戸線 習志野駅 徒歩12分
  • 3LDK/2階/63.07㎡/築29 年

大切なペットと暮らせる3LDK!公園が近く子育て環境も良好な潤いある住まい ■陽光・通風・周辺環境良好 ■閑静な住宅街 ■内装リフォーム ■エレベーター・宅配ボックスあり ■南面バルコニー

  • 2階以上
  • 角部屋
  • 南向き
  • ペット相談可
  • オートロック
  • 追焚機能
  • 駐車場有
  • 小学校
    800m以内
東海住宅株式会社 鎌ヶ谷支店

地元密着!お客様の夢や希望をお聞かせ下さい。豊富な地元情報と経験豊富な専門スタッフが、責任をもって全力でお客様の「住まい」探しのお手伝いをいたします。

その他の情報

外観:312000989315 中古マンション

習志野駅まで約1588m

間取り:312000989315
  • 3,390万円
  • 千葉県船橋市三山4丁目
  • 京成電鉄松戸線 習志野駅 徒歩26分
  • 3SLDK/8階/101.89㎡/築29 年

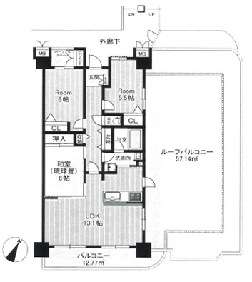
担当のヤマグチです。驚くほど広い!ルーフバルコニー61平からの贅沢な眺望!光と風を感じプライベート空間。かわいいペットと暮らせる◎101平米の3SLDK+2WIC 戸建感覚で暮らせる贅沢な暮らし

  • 2階以上
  • 角部屋
  • 南向き
  • ペット相談可
  • オートロック
  • 追焚機能
  • 駐車場有
  • 小学校
    800m以内
株式会社東宝ハウス松戸

創業2年で570組のご成約を頂いております!皆さまの心地よい家探しをスタッフ全員でサポートします!!住宅ローンのこと、アフターサポートのこと、街のこと、、気になることは何でもご相談ください!!!

その他の情報

外観:312001220716 中古マンション
間取り:312001220716
  • 3,433万円
  • 千葉県船橋市習志野台4丁目
  • 京成電鉄松戸線 習志野駅 徒歩10分
  • 3LDK/8階/77.64㎡/築30 年

2025年8月リノベーション完了♪室内とても綺麗なので、気持ちよく新生活を始めることができます。駅までは徒歩約10分で、通勤・通学に便利!9階建て8階部分で、眺望良好。広々ルーフバルコニーつきです。

  • 2階以上
  • 角部屋
  • 南向き
  • ペット相談可
  • オートロック
  • 追焚機能
  • 駐車場有
  • 小学校
    800m以内
株式会社アルカンジュ不動産

株式会社アルカンジュ不動産は地元千葉を拠点とした地域密着の不動産会社です。弊社では千葉市を中心に自社分譲地が多数ございます。未公開物件もございますので是非一度お問い合わせくださいませ。

その他の情報

外観:312001219398 中古マンション

【近い!】 習志野駅まで約720m

間取り:312001219398
  • 3,433万円
  • 千葉県船橋市習志野台4丁目
  • 京成電鉄松戸線 習志野駅 徒歩10分
  • 3LDK/8階/77.64㎡/築30 年
  • 2階以上
  • 角部屋
  • 南向き
  • ペット相談可
  • オートロック
  • 追焚機能
  • 駐車場有
  • 小学校
    800m以内
エムイーPLUS城東 株式会社

2003年2人で創業し現在6事業21店舗展開、社員数600人。2024年ではグループ成約数2416件と驚異的な販売実績を有するME Group その実績から提携ローン・金利優遇も多数あり。

その他の情報

外観:312001196497 中古マンション

【近い!】 習志野駅まで約733m

間取り:312001196497
  • 3,433万円
  • 千葉県船橋市習志野台4丁目
  • 京成電鉄松戸線 習志野駅 徒歩10分
  • 3LDK/8階/77.64㎡/築30 年

57m2超のルーフバルコニー付・角部屋・開放感溢れる3LDKで始める新生活 ■内装リフォーム済 ■全居室収納スペース有+和室付き ■陽光・通風・眺望・周辺環境良好 ■エレベーター2基+宅配ボックス完備

  • 2階以上
  • 角部屋
  • 南向き
  • ペット相談可
  • オートロック
  • 追焚機能
  • 駐車場有
  • 小学校
    800m以内
東海住宅株式会社 鎌ヶ谷支店

地元密着!お客様の夢や希望をお聞かせ下さい。豊富な地元情報と経験豊富な専門スタッフが、責任をもって全力でお客様の「住まい」探しのお手伝いをいたします。

その他の情報

外観:312001168213 中古マンション

【近い!】 習志野駅まで約736m

間取り:312001168213
  • 3,433万円
  • 千葉県船橋市習志野台4丁目
  • 京成電鉄松戸線 習志野駅 徒歩10分
  • 3LDK/8階/77.64㎡/築30 年

\今すぐ見たい!/も大歓迎♪本日のご案内も可能です!!ご見学から住宅ローン、お引渡しまで親切丁寧なサポートをお約束いたします!■来店不要■隙間時間で内覧OK■頭金0円から購入可能◎

  • 2階以上
  • 角部屋
  • 南向き
  • ペット相談可
  • オートロック
  • 追焚機能
  • 駐車場有
  • 小学校
    800m以内
南総キングダム株式会社 千葉土地建物管理 千葉支店

地域密着型の不動産会社として、お客様一人ひとりの理想の住まい探しをサポートさせていただきます。豊富な情報量と経験を活かし、安心・快適な暮らしを支える存在として、誠実かつ丁寧な対応を大切にしております。

その他の情報

外観:312001145883 中古マンション

【近い!】 習志野駅まで約720m

間取り:312001145883
  • 3,433万円
  • 千葉県船橋市習志野台4丁目
  • 京成電鉄松戸線 習志野駅 徒歩10分
  • 3LDK/8階/77.64㎡/築30 年
  • 2階以上
  • 角部屋
  • 南向き
  • ペット相談可
  • オートロック
  • 追焚機能
  • 駐車場有
  • 小学校
    800m以内
MEマイホーム計画京葉株式会社

2003年2人で創業し現在6事業21店舗展開、社員数600人。2024年ではグループ成約数2410件と驚異的な販売実績を有するME Group その実績から提携ローン・金利優遇も多数あり。

その他の情報

外観:312001086547 中古マンション

【近い!】 習志野駅まで約739m

間取り:312001086547
  • 3,433万円
  • 千葉県船橋市習志野台4丁目
  • 京成電鉄松戸線 習志野駅 徒歩10分
  • 3LDK/8階/77.64㎡/築30 年

☆新規リノベ物件☆9階建8階部分・角部屋☆3LDK・LDK13.1帖☆広いルーフバルコニーあり

  • 2階以上
  • 角部屋
  • 南向き
  • ペット相談可
  • オートロック
  • 追焚機能
  • 駐車場有
  • 小学校
    800m以内
ハウスドゥ 東習志野 株式会社Deltacompany

常にお客様のニーズに寄り添い最適な不動産のご提案をいたします。1.地域密着型2.豊富な経験と実績3.お客様第一主義。無理な営業はせず、最適な不動産のご提案をいたします。

その他の情報

外観:312001214604 中古マンション

習志野駅まで約1121m

間取り:312001214604
  • 3,380万円
  • 千葉県船橋市薬円台3丁目
  • 京成電鉄松戸線 習志野駅 徒歩16分
  • 3LDK/9階/76.33㎡/築24 年

RC造10階建て9階角部屋につき、陽当たり・通風・眺望良好◎ 2026年3月内装リフォーム実施済

  • 2階以上
  • 角部屋
  • 南向き
  • ペット相談可
  • オートロック
  • 追焚機能
  • 駐車場有
  • 小学校
    800m以内
株式会社オカムラメイト 船橋日大前支店

店舗は船橋日大前駅東口改札出てすぐでございます。船橋日大前を中心に新京成線沿線・東葉高速線沿線の魅力ある物件情報を数多くご用意しております。

その他の情報

外観:312001094212 中古マンション

【近い!】 習志野駅まで約734m

間取り:312001094212
  • 3,433万円
  • 千葉県船橋市習志野台4丁目
  • 京成電鉄松戸線 習志野駅 徒歩11分
  • 3LDK/8階/77.64㎡/築30 年

SRC造9階建て8階角住戸につき陽当たり・通風・眺望良好◎ 2025年8月末内装リフォーム完工

  • 2階以上
  • 角部屋
  • 南向き
  • ペット相談可
  • オートロック
  • 追焚機能
  • 駐車場有
  • 小学校
    800m以内
株式会社オカムラメイト 船橋日大前支店

店舗は船橋日大前駅東口改札出てすぐでございます。船橋日大前を中心に新京成線沿線・東葉高速線沿線の魅力ある物件情報を数多くご用意しております。

その他の情報

外観:312001087350 中古マンション

【近い!】 習志野駅まで約733m

間取り:312001087350
  • 3,433万円
  • 千葉県船橋市習志野台4丁目
  • 京成電鉄松戸線 習志野駅 徒歩10分
  • 3LDK/8階/77.64㎡/築30 年

【フルリノベ済】眺望良好の広々ルーフバルコニー付き角部屋! こだわりの内装や照明デザイン、食洗機や浴室乾燥機などの快適な設備仕様! ご家族安心のオートロックマンションです■内見予約受付中■

  • 2階以上
  • 角部屋
  • 南向き
  • ペット相談可
  • オートロック
  • 追焚機能
  • 駐車場有
  • 小学校
    800m以内
東海住宅株式会社 本店

東海住宅本店スタッフの想い「家探しは家族にとってワクワクする楽しいイベントです!」良い家を見つけることはもちろん、一生の思い出に残る楽しいイベントを思いっきり楽しみましょう!

その他の情報

外観:312001210143 中古マンション
間取り:312001210143
  • 3,380万円
  • 千葉県船橋市薬円台3丁目
  • 京成電鉄松戸線 習志野駅 徒歩15分
  • 3LDK/9階/76.33㎡/築24 年

〇●プライベート感溢れる角部屋。ペットと暮らせるリフォーム済み物件!●〇 ■前面棟無しの高層階で眺望も良好です。 ■浄水器、食洗器、浴室換気乾燥機等の設備も充実。 ■即引き渡し可能物件です。

  • 2階以上
  • 角部屋
  • 南向き
  • ペット相談可
  • オートロック
  • 追焚機能
  • 駐車場有
  • 小学校
    800m以内
東海住宅株式会社 緑が丘支店

「不動産のことなら何でも!」自社物件・仲介・注文建築・分譲住宅・投資・リフォーム・賃貸など多角的な本業を展開する東海住宅は創業50周年を迎えました! 只今不動産買取強化中です!

その他の情報

外観:312001204166 中古マンション

【近い!】 習志野駅まで約718m

間取り:312001204166
  • 3,780万円
  • 千葉県船橋市西習志野3丁目
  • 京成電鉄松戸線 習志野駅 徒歩14分
  • 3LDK/4階/64.41㎡/築31 年

北習志野駅徒歩1分の好立地!富士山・スカイツリーが望める3LDKマンション ■陽光・通風・眺望・周辺環境良好! ■閑静な住宅街 ■全居室収納スペースあり ■内装リフォーム済み ■専有面積:64m2以上

  • 2階以上
  • 角部屋
  • 南向き
  • ペット相談可
  • オートロック
  • 追焚機能
  • 駐車場有
  • 小学校
    800m以内
東海住宅株式会社 鎌ヶ谷支店

地元密着!お客様の夢や希望をお聞かせ下さい。豊富な地元情報と経験豊富な専門スタッフが、責任をもって全力でお客様の「住まい」探しのお手伝いをいたします。

その他の情報

外観:312001217053 中古マンション

【近い!】 習志野駅まで約721m

間取り:312001217053
  • 3,080万円
  • 千葉県船橋市習志野台4丁目
  • 京成電鉄松戸線 習志野駅 徒歩7分
  • 3LDK/2階/63.07㎡/築29 年

担当のナツです。公園が近く子育て環境良好◎!新規リノベーション予定!習志野駅徒歩7分(約560m)・ペット飼育可!本日ご相談できます!

  • 2階以上
  • 角部屋
  • 南向き
  • ペット相談可
  • オートロック
  • 追焚機能
  • 駐車場有
  • 小学校
    800m以内
株式会社東宝ハウス松戸

創業2年で570組のご成約を頂いております!皆さまの心地よい家探しをスタッフ全員でサポートします!!住宅ローンのこと、アフターサポートのこと、街のこと、、気になることは何でもご相談ください!!!

その他の情報

外観:312001214309 中古マンション

【近い!】 習志野駅まで約645m

間取り:312001214309
  • 3,390万円
  • 千葉県船橋市薬円台2丁目
  • 京成電鉄松戸線 習志野駅 徒歩9分
  • 3LDK/5階/80.08㎡/築25 年

2026年4月水回り等内装リノベーション◎きれいなお部屋に☆

  • 2階以上
  • 角部屋
  • 南向き
  • ペット相談可
  • オートロック
  • 追焚機能
  • 駐車場有
  • 小学校
    800m以内
ピタットハウス西船橋14号店 株式会社アイ・ユニットコーポレーション

新着物件・毎日更新中!Staffブログも好評中!当社はお客様と「笑顔」を分かち合えるように多数の物件情報とスピーディかつ丁寧なご対応である「レスポンス」の早さをモットーに日々ご対応させて頂いております

その他の情報

外観:312001218728 中古マンション

【近い!】 習志野駅まで約736m

間取り:312001218728
  • 3,433万円
  • 千葉県船橋市習志野台4丁目
  • 京成電鉄松戸線 習志野駅 徒歩10分
  • 3LDK/8階/77.64㎡/築30 年

57平米の広々ルーフバルコニー付!開放感あふれる8階南東角住戸

  • 2階以上
  • 角部屋
  • 南向き
  • ペット相談可
  • オートロック
  • 追焚機能
  • 駐車場有
  • 小学校
    800m以内
株式会社東宝ハウス船橋

グループ創業50年。未公開物件を含む豊富な物件のご紹介だけでなく、無理のない資金計画・ローンのご提案、引渡し後のアフターサポートまで「住まい」のご購入をトータルにコンサルティングいたします。

その他の情報

外観:312001103378 中古マンション

【近い!】 習志野駅まで約715m

間取り:312001103378
  • 3,433万円
  • 千葉県船橋市習志野台4丁目
  • 京成電鉄松戸線 習志野駅 徒歩10分
  • 3LDK/8階/77.64㎡/築30 年

2025年8月末フルリノベーション完了しました。

  • 2階以上
  • 角部屋
  • 南向き
  • ペット相談可
  • オートロック
  • 追焚機能
  • 駐車場有
  • 小学校
    800m以内
ピタットハウス市川南口店 ハウジングジャパン株式会社

お住まいの情報は「豊富さ」「新鮮さ」にこだわっています。「一生に一度の買い物だから、わがままを聞いて!」、「住宅の購入方法(ローン・資金計画)のアドバイスが欲しい!」など、ドシドシお話聞かせて下さい。

その他の情報

NO IMAGE 中古マンション

習志野駅まで約1054m

間取り:312001221143
  • 3,380万円
  • 千葉県船橋市薬円台3丁目
  • 京成電鉄松戸線 習志野駅 徒歩15分
  • 3LDK/9階/76.33㎡/築24 年

現地案内会開催中‥365日ご案内いつでも大歓迎!!京成電鉄松戸線『習志野』駅徒歩15分/薬円台南小学校徒歩3分・三田中学校徒歩12分/角部屋高層階

  • 2階以上
  • 角部屋
  • 南向き
  • ペット相談可
  • オートロック
  • 追焚機能
  • 駐車場有
  • 小学校
    800m以内
株式会社アフィオ ピタットハウスみつわ台店

『出会えて良かった。』をコンセプトに、ピタットハウスネットワークでお客様のご新居探しをサポート致します!住宅ローンアドバイザーの有資格者もおり、しっかりとした研修を受けておりますので是非ご相談下さい

その他の情報

外観:312001213982 中古マンション

習志野駅まで約1056m

間取り:312001213982
  • 3,380万円
  • 千葉県船橋市薬円台3丁目
  • 京成電鉄松戸線 習志野駅 徒歩15分
  • 3LDK/9階/76.33㎡/築24 年

\今すぐ見たい!/も大歓迎♪本日のご案内も可能です!!ご見学から住宅ローン、お引渡しまで親切丁寧なサポートをお約束いたします!■来店不要■隙間時間で内覧OK■頭金0円から購入可能◎

  • 2階以上
  • 角部屋
  • 南向き
  • ペット相談可
  • オートロック
  • 追焚機能
  • 駐車場有
  • 小学校
    800m以内
南総キングダム株式会社 千葉土地建物管理 千葉支店

地域密着型の不動産会社として、お客様一人ひとりの理想の住まい探しをサポートさせていただきます。豊富な情報量と経験を活かし、安心・快適な暮らしを支える存在として、誠実かつ丁寧な対応を大切にしております。

その他の情報

外観:312001218868 中古マンション

【近い!】 習志野駅まで約243m

間取り:312001218868
  • 3,390万円
  • 千葉県船橋市薬円台2丁目
  • 京成電鉄松戸線 習志野駅 徒歩9分
  • 3LDK/5階/80.00㎡/築25 年

■頭金0円から購入可・新規リノベーション■創業55年・フルサポートをお約束 ■本日ご見学可能・来店不要■現地にて全てサポート致します■ □隙間時間で内覧OK□

  • 2階以上
  • 角部屋
  • 南向き
  • ペット相談可
  • オートロック
  • 追焚機能
  • 駐車場有
  • 小学校
    800m以内
株式会社アイエ

面倒な来社不要!現地完結型でご案内をさせて頂きます。住宅ローンやスケジュール、購入申込等まで全てを現地にて行います。お仕事帰りや買い物帰り等の隙間時間で内覧も可能!創業55年。愛ある家探しを致します。

その他の情報

外観:312001160367 中古マンション

【近い!】 習志野駅まで約733m

間取り:312001160367
  • 3,433万円
  • 千葉県船橋市習志野台4丁目
  • 京成電鉄松戸線 習志野駅 徒歩10分
  • 3LDK/8階/77.64㎡/築30 年

諸費用サービス・ご見学・ご成約キャンペーン実施中 フリーダイヤルにてお問合せ下さい。

  • 2階以上
  • 角部屋
  • 南向き
  • ペット相談可
  • オートロック
  • 追焚機能
  • 駐車場有
  • 小学校
    800m以内
株式会社スターフォレスト

仲介手数料無料サービス・ご見学・ご成約キャンペーン実施中弊社で初めてご見学頂いたお客様に500円分QUOカードプレゼント弊社でご契約頂いたお客様に20,000円分ギフトカードプレゼント

その他の情報

外観:312001213524 中古マンション

【近い!】 習志野駅まで約723m

間取り:312001213524
  • 3,080万円
  • 千葉県船橋市習志野台4丁目
  • 京成電鉄松戸線 習志野駅 徒歩7分
  • 3LDK/2階/63.07㎡/築29 年

水廻りを集めた配置になっている為、奥様の家事が捗りますね!

  • 2階以上
  • 角部屋
  • 南向き
  • ペット相談可
  • オートロック
  • 追焚機能
  • 駐車場有
  • 小学校
    800m以内
ピタットハウス西船橋14号店 株式会社アイ・ユニットコーポレーション

新着物件・毎日更新中!Staffブログも好評中!当社はお客様と「笑顔」を分かち合えるように多数の物件情報とスピーディかつ丁寧なご対応である「レスポンス」の早さをモットーに日々ご対応させて頂いております

その他の情報

外観:312001209425 中古マンション

習志野駅まで約1119m

間取り:312001209425
  • 3,380万円
  • 千葉県船橋市薬円台3丁目
  • 京成電鉄松戸線 習志野駅 徒歩16分
  • 3LDK/9階/76.33㎡/築24 年

★即日ご案内可能★資料請求のみも大歓迎★新規リフォーム済み★ペット飼育可能★防犯面充実

  • 2階以上
  • 角部屋
  • 南向き
  • ペット相談可
  • オートロック
  • 追焚機能
  • 駐車場有
  • 小学校
    800m以内
ハウスドゥ 東習志野 株式会社Deltacompany

常にお客様のニーズに寄り添い最適な不動産のご提案をいたします。1.地域密着型2.豊富な経験と実績3.お客様第一主義。無理な営業はせず、最適な不動産のご提案をいたします。

その他の情報

外観:312001214907 中古マンション

【近い!】 習志野駅まで約650m

間取り:312001214907
  • 3,390万円
  • 千葉県船橋市薬円台2丁目
  • 京成電鉄松戸線 習志野駅 徒歩9分
  • 3LDK/5階/80.08㎡/築25 年

\今すぐ見たい!/も大歓迎♪本日のご案内も可能です!!ご見学から住宅ローン、お引渡しまで親切丁寧なサポートをお約束いたします!■来店不要■隙間時間で内覧OK■頭金0円から購入可能◎

  • 2階以上
  • 角部屋
  • 南向き
  • ペット相談可
  • オートロック
  • 追焚機能
  • 駐車場有
  • 小学校
    800m以内
南総キングダム株式会社 千葉土地建物管理 千葉支店

地域密着型の不動産会社として、お客様一人ひとりの理想の住まい探しをサポートさせていただきます。豊富な情報量と経験を活かし、安心・快適な暮らしを支える存在として、誠実かつ丁寧な対応を大切にしております。

その他の情報

外観:312001213435 中古マンション
間取り:312001213435
  • 3,390万円
  • 千葉県船橋市薬円台2丁目
  • 京成電鉄松戸線 習志野駅 徒歩9分
  • 3LDK/5階/80.08㎡/築25 年

●〇安心保証付のフルリノベーション物件。嬉しいパントリー付きキッチン。〇● ■南向きワイドバルコニーで日当たり良好。 ■大切なペットと暮らせるマンションです(細則あり) ■宅配ボックス付き。

  • 2階以上
  • 角部屋
  • 南向き
  • ペット相談可
  • オートロック
  • 追焚機能
  • 駐車場有
  • 小学校
    800m以内
東海住宅株式会社 緑が丘支店

「不動産のことなら何でも!」自社物件・仲介・注文建築・分譲住宅・投資・リフォーム・賃貸など多角的な本業を展開する東海住宅は創業50周年を迎えました! 只今不動産買取強化中です!

その他の情報

外観:312001221769 中古マンション

習志野駅まで約1588m

間取り:312001221769
  • 3,390万円
  • 千葉県船橋市三山4丁目
  • 京成電鉄松戸線 習志野駅 徒歩27分
  • 3SLDK/8階/101.89㎡/築29 年

2025年6月内装リフォーム完了予定!ペット飼育可能(細則有)で大切なペットと一緒に暮らせる!

  • 2階以上
  • 角部屋
  • 南向き
  • ペット相談可
  • オートロック
  • 追焚機能
  • 駐車場有
  • 小学校
    800m以内
センチュリー21千葉リアルティー

千葉県内を熟知した不動産会社です。家を買う前から買った後までトータルプランニングのご提案を致します。購入に向けてわからないこと、不安なことお聞かせください。ご納得頂けるまでトコトンお付き合い致します。

その他の情報

外観:312001226297 中古マンション

習志野駅まで約1120m

NO IMAGE
  • 3,380万円
  • 千葉県船橋市薬円台3丁目
  • 京成電鉄松戸線 習志野駅 徒歩16分
  • 3LDK/9階/76.33㎡/築24 年
  • 2階以上
  • 角部屋
  • 南向き
  • ペット相談可
  • オートロック
  • 追焚機能
  • 駐車場有
  • 小学校
    800m以内
株式会社東宝ハウス新小岩

「住まい」を通じて、「今」そして「将来」も、すべてのお客様が豊かで幸せに暮らしていくためのお手伝いをさせていただくこと。それが、私たち東宝ハウス新小岩の仕事です。

その他の情報

外観:312001226292 中古マンション

【近い!】 習志野駅まで約733m

間取り:312001226292
  • 3,433万円
  • 千葉県船橋市習志野台4丁目
  • 京成電鉄松戸線 習志野駅 徒歩12分
  • 3LDK/8階/77.64㎡/築30 年

不安な点やわからないことなどひとつひとつ明確にしながら、一緒に楽しくお住まい探しが出来ればと思います。諸費用を含めた住宅ローンなどについてもお気軽にご相談ください。

  • 2階以上
  • 角部屋
  • 南向き
  • ペット相談可
  • オートロック
  • 追焚機能
  • 駐車場有
  • 小学校
    800m以内
株式会社東宝ハウス新小岩

「住まい」を通じて、「今」そして「将来」も、すべてのお客様が豊かで幸せに暮らしていくためのお手伝いをさせていただくこと。それが、私たち東宝ハウス新小岩の仕事です。

その他の情報

1ページ目(2ページ中) 次へ
この条件で新着メールを受取る
この検索条件を保存する

※習志野駅までの直線距離を表示しています。道路距離ではありませんのでご了承ください。

追加が完了しました。

現在00件保存されています。(最大5件)

保存した条件一覧を見る

現在00件保存されています。

残り00件追加することができます。

お気に入り物件一覧を見る

間隔を空けてお試しください。

問合せが未完了の物件

駅を変更 条件を変更
チェックした物件をまとめて 資料請求(無料) お気に入りに追加