南千住駅(東京都)周辺の4LDKの中古マンションの購入情報

南千住駅(東京都)周辺の4LDKの中古マンションの購入情報をご覧いただけます。

4

↓ チェックした物件をまとめてお問い合わせ

外観:313004665227 中古マンション

【近い!】 南千住駅まで約630m

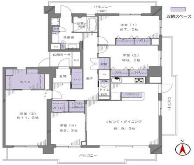
間取り:313004665227
  • 11,980万円
  • 東京都荒川区南千住8丁目
  • 常磐線 南千住駅 徒歩10分
  • 4LDK/19階/90.15㎡/築22 年

私たち東宝ハウス城東は不動産売買を通じて、お客様一人一人と誠実に向き合い、これからの暮らしに「安心」と「満足」をお届けし続けていきます。

  • 2階以上
  • 角部屋
  • 南向き
  • ペット相談可
  • オートロック
  • 追焚機能
  • 駐車場有
  • 小学校
    800m以内
株式会社東宝ハウス城東

東宝ハウス城東は、関東一円で20社を展開する東宝ハウスホールディングスの一員です。お客様一人ひとりに、グループのネットワークとスケールメリットを最大限に活かした価値の高いサービスをお届けします。

その他の情報

NO IMAGE 中古マンション

【近い!】 南千住駅まで約858m

間取り:313004638587
  • 9,680万円
  • 東京都荒川区南千住6丁目
  • 常磐線 南千住駅 徒歩13分
  • 4LDK/11階/124.74㎡/築37 年

三面バルコニーのある開放的な角部屋住戸、広々124平米越えの4LDK、専用使用権付きの駐車場あり。ゆとりある暮らしを叶えるレジデンス、3路線利用可能で通勤も快適です。

  • 2階以上
  • 角部屋
  • 南向き
  • ペット相談可
  • オートロック
  • 追焚機能
  • 駐車場有
  • 小学校
    800m以内
株式会社エステート白馬 中野店

中野・杉並・練馬及び周辺エリアの物件はほぼ全てお取り扱いをしております。JR中野駅より徒歩7分、提携ファイナンシャルプランナーにも無料相談できるお店です。IT重説による非接触での契約手続きも可能です。

その他の情報

外観:313004566937 中古マンション

【近い!】 南千住駅まで約861m

間取り:313004566937
  • 9,680万円
  • 東京都荒川区南千住6丁目
  • 常磐線 南千住駅 徒歩14分
  • 4SLDK/11階/124.74㎡/築37 年

中古マンション一戸建て土地等の都内売買物件情報をお客様のご希望が叶うよう心を込めてご紹介しております

  • 2階以上
  • 角部屋
  • 南向き
  • ペット相談可
  • オートロック
  • 追焚機能
  • 駐車場有
  • 小学校
    800m以内
株式会社ケーコーポレーション 本店

創業以来、売買・賃貸物件の仲介、賃貸物件の管理をメイン業務とし、激変する経済状況の中、景気の波に左右されない企業コンセプトの基、数多くのお客様及びオーナー様に育てられた事が当社の強みとなっております。

その他の情報

外観:313004566881 中古マンション

【近い!】 南千住駅まで約861m

間取り:313004566881
  • 9,680万円
  • 東京都荒川区南千住6丁目
  • 常磐線 南千住駅 徒歩14分
  • 4SLDK/11階/124.74㎡/築37 年

中古マンション一戸建て土地等の都内売買物件情報をお客様のご希望が叶うよう心を込めてご紹介しております

  • 2階以上
  • 角部屋
  • 南向き
  • ペット相談可
  • オートロック
  • 追焚機能
  • 駐車場有
  • 小学校
    800m以内
株式会社ケーコーポレーション 白山上店

当社は三田線白山駅前でインターネットを駆使した提案型の営業スタイルを展開しています。賃貸管理物件は約10,000件、又、多数の方に住まいを購入いただいています。お問い合わせをお待ちしております。

その他の情報

1ページ目(1ページ中)
この条件で新着メールを受取る
この検索条件を保存する

※南千住駅までの直線距離を表示しています。道路距離ではありませんのでご了承ください。

追加が完了しました。

現在00件保存されています。(最大5件)

保存した条件一覧を見る

現在00件保存されています。

残り00件追加することができます。

お気に入り物件一覧を見る

間隔を空けてお試しください。

問合せが未完了の物件

駅を変更 条件を変更
チェックした物件をまとめて 資料請求(無料) お気に入りに追加